НОВА НАМАЛЕНА ЦЕНА!!!
Агенция за недвижими имоти ХОУМ ФОР Ю има голямото удоволствие да ви представи за продажба УПИ в местност ДИНЧОВА ЧАКОВИЦА по кадастралната карта на с. Еленово, общ. Благоевград.
Имотът с площ 697 кв.м. + 99,00 кв.м. частен път - урбанизирана територия, съгласно одобрен ПУП-ПЗ.
- Височина на застрояване - до 8.00 м.;
- Максимална стойност на Кинт - 0,9;
- Плътност на застрояване - максимум 40 %;
- Плътност на озеленяване - минимум 40 %;
Парцела е с лека денивелация и се намира на много тихо и спокойно място!
Достъпът до имота ще се осъществява от съществуващ местен път (урбанизирана територия), съгласно одобрен ПУП-ПП в местност ДИНЧОВА ЧАКОВИЦА по кадастралната карта на с. Еленово, общ. Благоевград.
Присъединяването към електроразпределителната мрежа ще се осъществи, съгласно становище от Електрохолд АД.
Захранването на бъдещия обект с електроенергия ще се осъществи
чрез изтегляне на нови кабели 20kV от съществуващ ЖР стълб на ВЕЛ 20kV
Айдарово до проектен трафопост на имотната граница на обекта при
спазване на необходимите отстояния от сгради и съседни имоти.
Трафопоста да се оборудва с трансформатор съобразно необходимата
мощност. Измерването на потребената електрическа енергия от консуматора
ще се извършва в главно електромерно табло монтирано на имотната граница
на място съгласувано с експлоатационното предприятие и захранено от
проектния трафопост.
Водоснабдяването и отвеждането на отпадните води ще се осъществяват съгласно данни за съществуващите мрежи от ВиК ЕООД - Благоевград
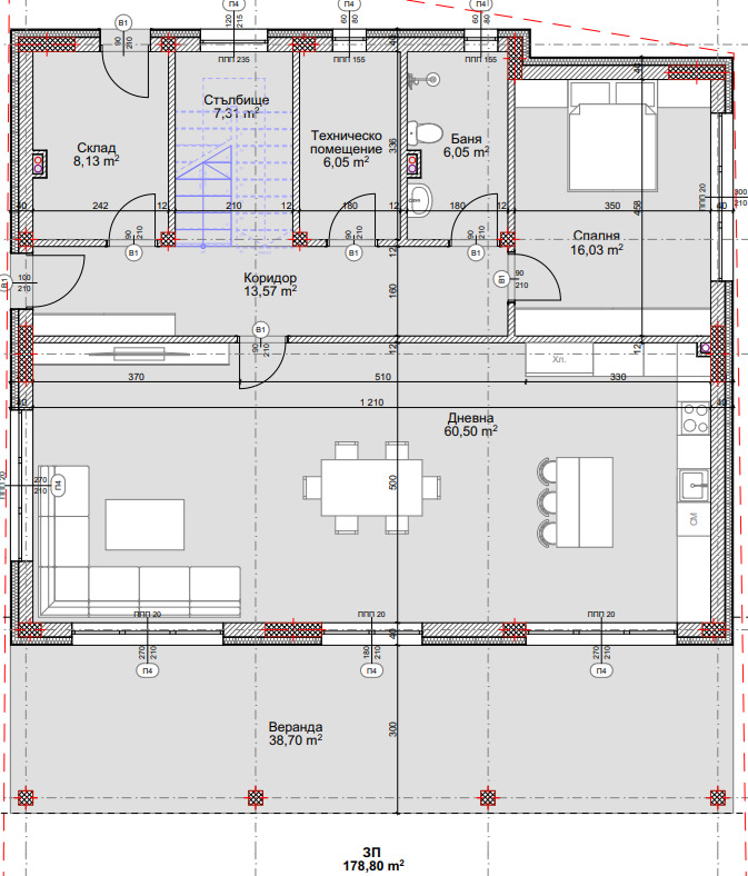
Готов одобрен проект за къща със следните показатели:
Разпределение на КОТА =/- 0,00 М със ЗП 178,80 кв.м.:
- коридор с площ 13,57 кв.м.
- просторна дневна с трапезария и кухненски бокс с площ 60,50 кв.м.
- спалня с площ 16,03 кв.м.
- склад с площ 8,13 кв.м.
- техническо помещение с площ 6,05 кв.м.
- баня с тоалетна с площ 6,05 кв.м.
- веранда с площ 38,70 кв.м.
- модерно вътрешно стълбище към втория етаж с площ 7,31 кв.м.
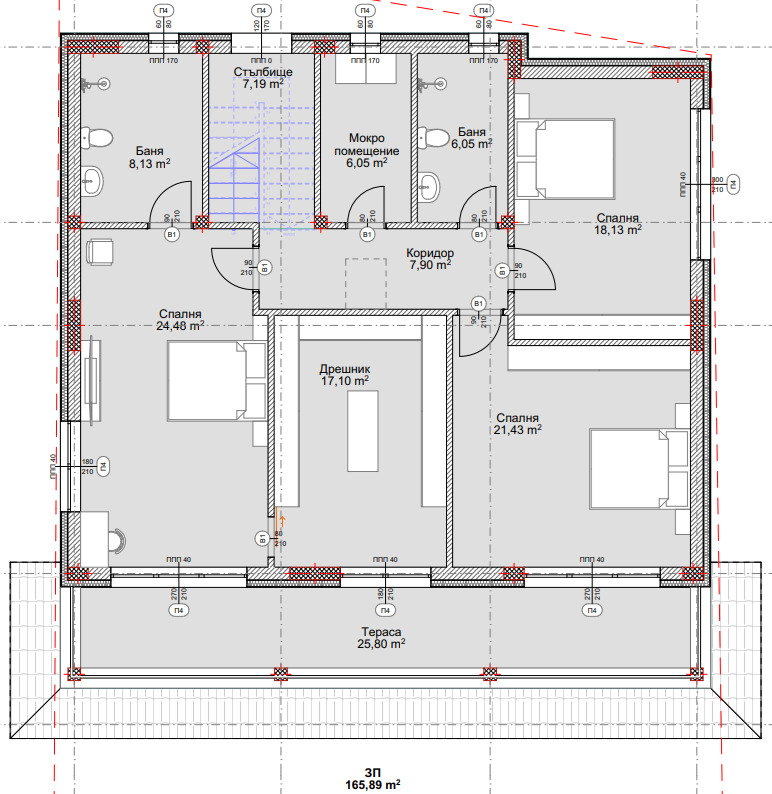
Разпределение на КОТА + 3,00 М втори етаж със ЗП 165,89 кв.м.:
- модерно вътрешно стълбище към втория етаж с площ 7,19 кв.м.
- коридор с площ 7,90 кв.м.
- мокро помещение с площ 6,05 кв.м.
- баня с тоалетна с площ 6,05 кв.м.
- спалня с площ 18,13 кв.м.
- спалня с площ 21,43 кв.м.
- тераса с площ 25,80 кв.м.
- родителска спалня с площ 24,48 кв.м.
- баня с тоалетна с площ 8,13 кв.м.
- дрешник с площ 17,10 кв.м.
За да получите повече информация за предлаганата от нас оферта може да ни се обадете на посочените телефони за връзка!
Екипът от професионалисти на ХОУМ ФОР Ю ще Ви помогне да сбъднете мечтите си и да ги превърне в реалност, като ви съдейства НАПЪЛНО БЕЗПЛАТНО при кандидатстването за жилищен кредит с ПРЕФЕРЕНЦИАЛНИ УСЛОВИЯ от най-големия кредитен консултант в България КРЕДИТ ЦЕНТЪР!
Ако предлаганият имот ви е харесал и представлява интерес за вас, не се колебайте да се свържете с наш брокер, за да резервирате час за оглед в удобно за вас време!
Заповядайте в нашият офис на бул. Кирил и Методий 2 за безплатна консултация с нашите професионалисти, които ще ви обърнат специално внимание, като ви запознаят с пазара на недвижими имоти и ви помогнат с избора на ново жилище според вашите изисквания!
Новият Ви ДОМ е точно тук!
Защото с нас мечтите стават реалност!
РЕФЕРЕНТЕН 7605







