гр. Костенец, област София
27 500
780 кв.м.
в регулация с ток и вода
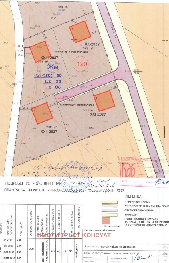
УПИ то е с лек наклон. Намира се в нов квартал на град Костенец, в края на регулацията. Издадена виза за проектиране през 2022г., становища за присъединяване към електрозахранване и ВиК в урбанизирана територия, НТП за ниско застрояване до 10 м., плътност до 60%. Имот подходящ за жилищно застрояване в градска среда. Достъп до терена: от изток чрез улица тупик на 23 метра от асфалтов път, от запад лице 37 метра на не изграден селскостопански път. Съгласно снимките имотът се намира непосредствено в съседство с бялата масивна ограда към съседа от север.
Град Костенец е разположен в подножието на Рила, на 72 км. югоизточно от центъра на София, на 13 км. от автомагистрала Тракия.
Виза
За жил.строителство
https://www.trustconsults.eu/land-property-in-kostenets
Виж всички обяви в imotitrust.bazar.bg или тук



