🏗️ Парцел за инвестиция с проект зона Смф2
Предлага се урегулиран поземлен имот с площ 6 199 кв.м, разположен в с. Лозен, район Панчарево, м. Ефенди мост , в непосредствена близост до Околовръстен път София.
📍 Параметри на имота (съгласно устройствената зона Смф2):
Плътност на застрояване: 40 60%
КИНТ: 1.2
Минимална озеленена площ: 40 30%
Кота корниз: 10 м
📍 Предимства и възможности:
Зона Смф2 (смесена многофункционална зона) позволява жилищно, търговско, офисно или комбинирано застрояване;
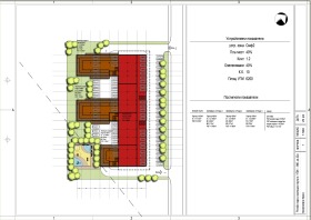
Изготвен идеен проект с предвидено застрояване:
Ритейл парк с общо 3 135 кв.м РЗП
Жилищни сгради:
Сграда 1 1 760 кв.м РЗП
Сграда 2 1 760 кв.м РЗП
Сграда 3 736 кв.м РЗП
Общо РЗП: 7 391 кв.м
Разработени архитектурни разпределения с оптимална комбинация от апартаменти (от 50 до 145 кв.м), включително пентхауси с големи тераси;
Концепция за Lozen Retail Park с модерна визия, паркоместа и озеленяване;
Отлична транспортна достъпност бърза връзка към Цариградско шосе и АМ Тракия , в близост до нови жилищни и смесени комплекси.
📍 Инвестиционен потенциал:
Подходящ както за жилищно строителство, така и за търговски площи, офиси или комбиниран проект;
Атрактивна локация с бързоразвиваща се среда;
Възможност за поетапна реализация отделни жилищни сгради или търговска част.
✅ Имотът е идеален за строителни предприемачи и инвеститори, търсещи възможност за проект с висока възвръщаемост в зона с перспективно развитие.
За допълнителна информация и въпроси, обадете се на:
Димитър Кулов, тел: 0878 501 233, или изпратете запитване на имейл: к[email protected]







