Предлагаме урегулиран поземлен имот с площ от 2911 кв.м, в с. Герман, общ. Панчарево.
Имотът е с виза за проектиране и архитектурна разработка за многофункционална сграда със следното разпределение:
Партер кабинети, заседателни зали, обслужващи помещения и 19 паркоместа
Първи етаж офисни и работни пространства с гъвкави разпределения
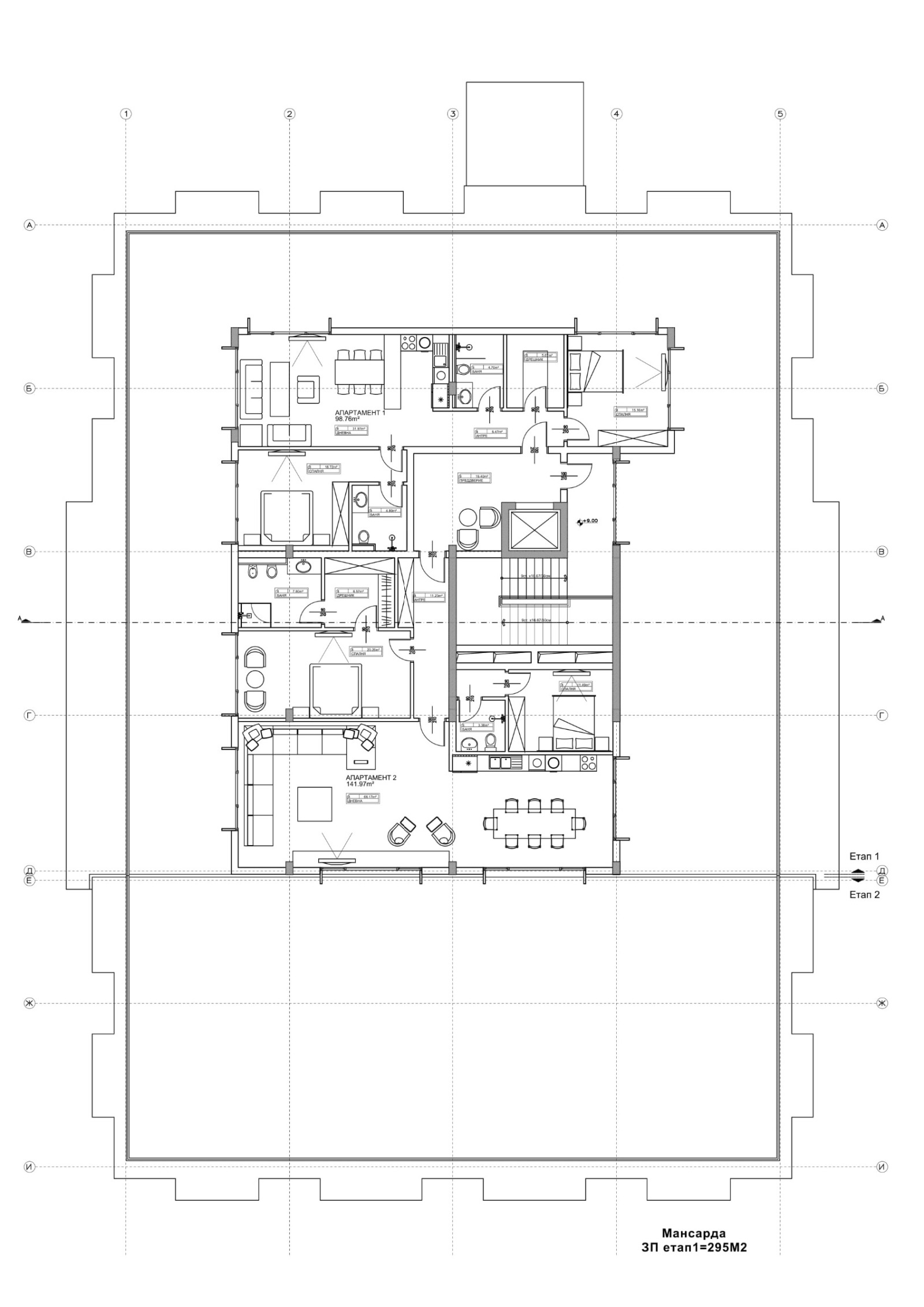
Мансардно ниво два просторни апартамента (98,76 кв.м и 141,97 кв.м)
📍 Имотът попада в урбанизирана територия, предназначена за обществен обект, комплекс, което позволява и други типове проекти, съобразени с отреждането на зоната.
✔ Виза за проектиране
✔ Разработен архитектурен проект
✔ Гъвкави възможности за бъдещо развитие
✔ Чудесна локация: на Околовръстния път (локално платно) в с. Герман бърза връзка със София и отлична видимост.
За повече информация и въпроси, обадете се на:
Димитър Кулов, тел: 0878 501 233
Имейл: [email protected]
Виж всички обяви в delta3estate.bazar.bg или тук







