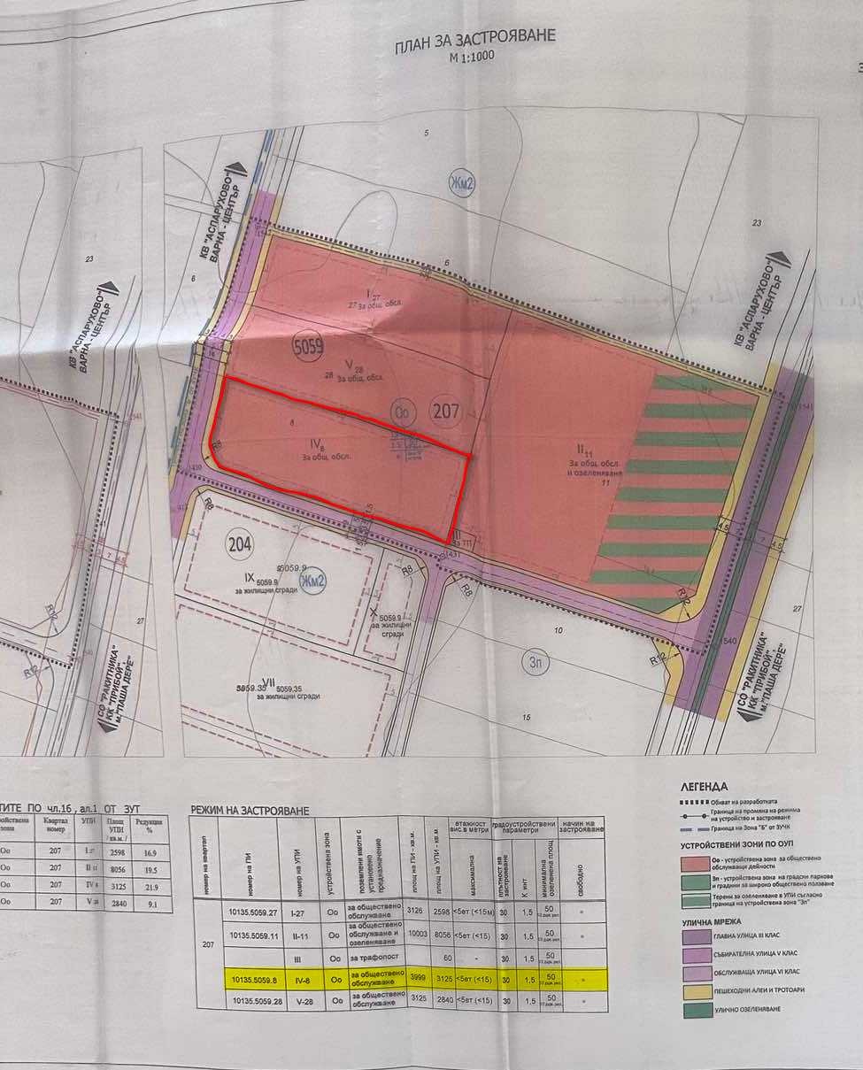
Предлагаме на Вашето внимание панорамен парцел в местност Боровец-юг, местност 'Чигана', в началото на местността, на 30 метра от първите къщи на Боровец Юг . Разстоянието до главният асфалтов път е около 350 метра. Достъпа е добър. Парцела е с ориентировъчни размери- 32/97 метра. Равен. Трасиран. Панорама към града и морето. ПУП с параметри на застрояване- ПЗ-30%, Кинт-1,5 КК-15м., с предназначение - за обществено обслужване. Възможна стъпка на сградата - 937кв.м. и РЗП-4687кв.м. В процес на промяна на предназначение!
Има възможност за разширяване на територията с покупка на съседния имот с площ от 2840м2. За него също има изготвен, одобрен и влязъл в сила ПУП-ПРЗ със същите показатели и предназначение. Парцела е с променено предназначение, партида за ток!
Виж всички обяви в virgin2006.bazar.bg или тук



