Предлага се за продажба УПИ в квартал Челопечене, местност Ридо.
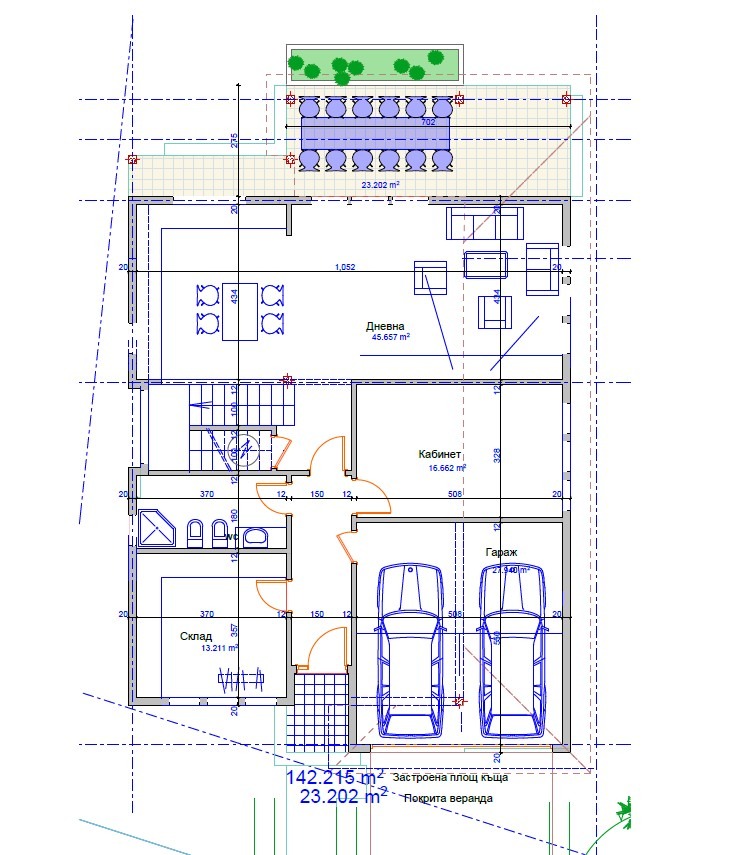
С разработен идеен проект за еднофамилна къща.
Парцелът е равен, с правилна правоъгълна форма и изрядни документи. Попада в жилищна устройствена зона Жм с параметри: кинт- 1,3 ; плътност - 40%; кота корниз 10 метра.
Подходящ за построяване на една или две еднофамилни къщи.
Видео на имота може да гледате тук: https://youtu.be/SDlQtFg07iM






