Явлена офис Изток предлага за продажба три урегулирани поземлени имота (УПИ), разположени в кв.'Малинова долина', една от най-престижните и търсени локации за живеене в покрайнините на София. Районът се отличава с тиха, подредена среда и ограничено предлагане на имоти, което допринася за запазената му стойност във времето.
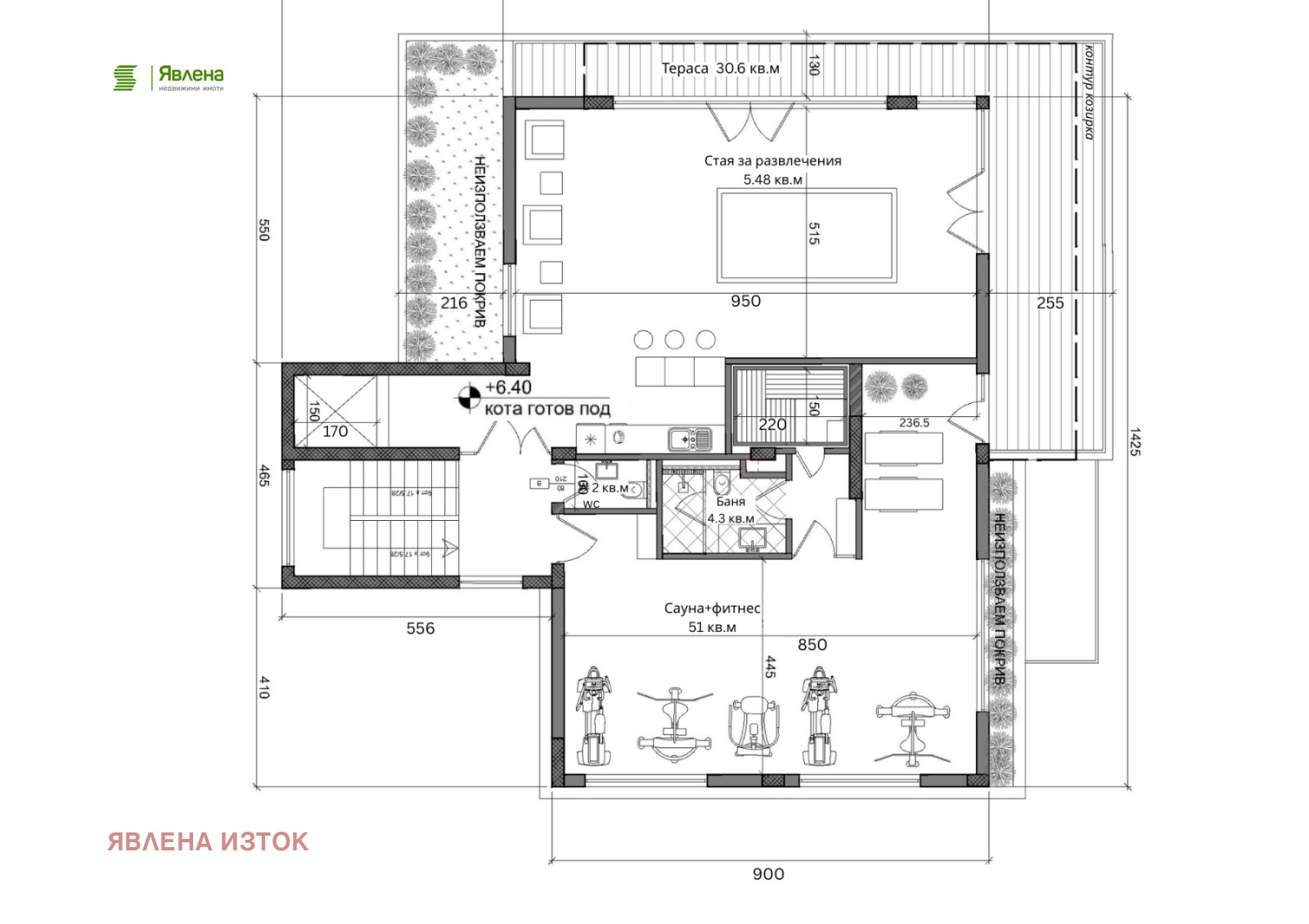
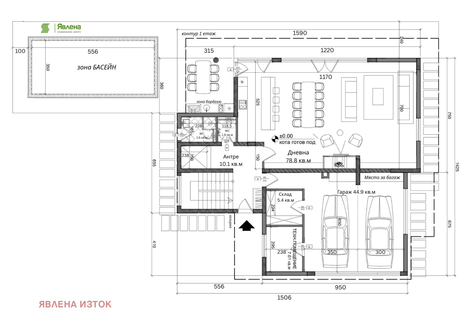
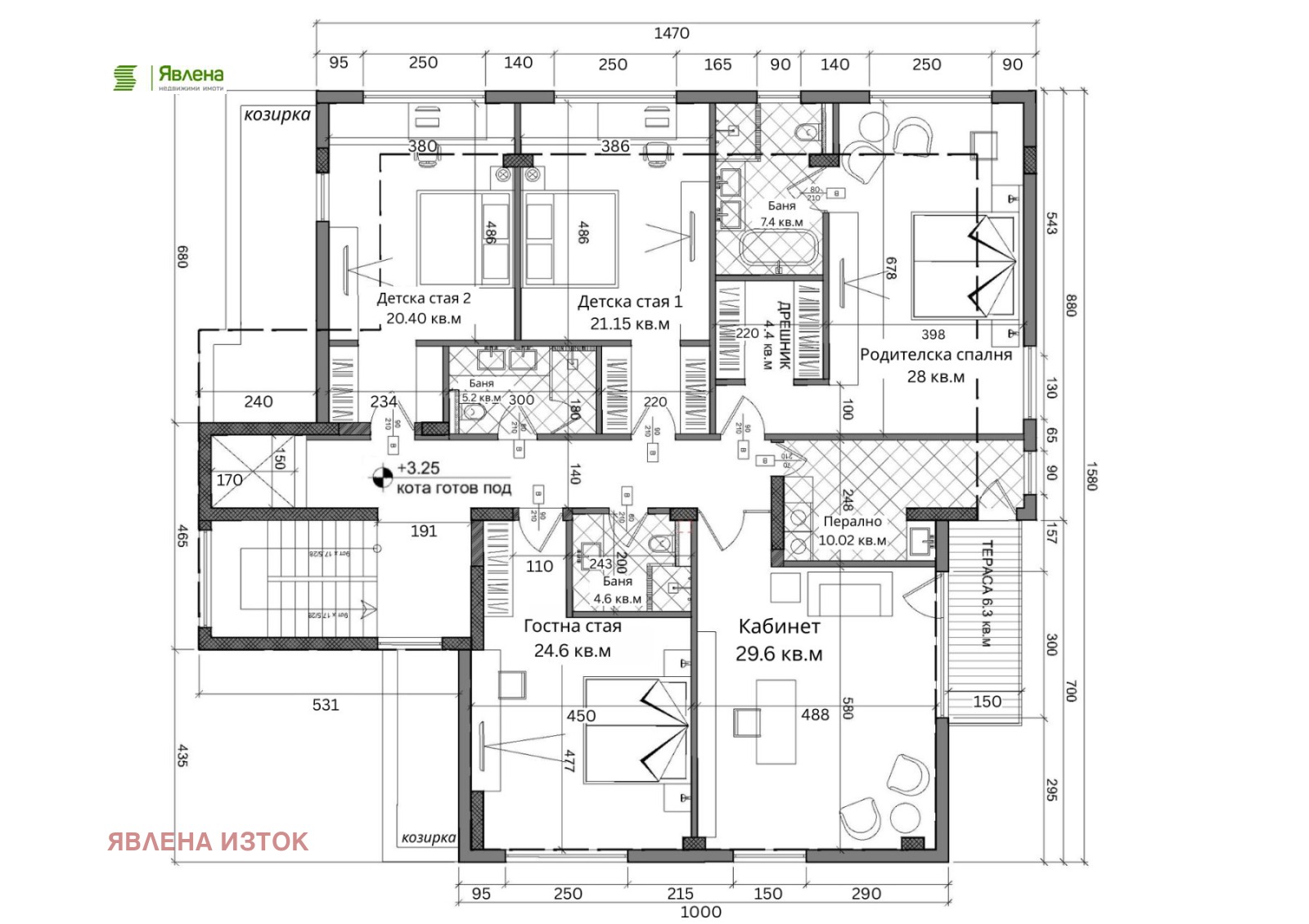
За един от парцелите е издадена виза за застрояване, позволяваща изграждането на просторна еднофамилна къща с разгъната застроена площ от 610 кв.м, или на две къщи-близнаци на калкан по 305 кв.м всяка. Устройствените параметри включват максимална плътност на застрояване от 25% и коефициент на интензивност (КИНТ) 0.8. Теренът е равен, без денивелация, което значително улеснява проектирането и строителството на модерен, функционален дом.
Имотите са подходящи за хора, които търсят място за създаване на истински дом, среда с усещане за спокойствие, близост до природата и същевременно удобен достъп до града. Подходящи са и за две семейства, които желаят да живеят заедно, но в самостоятелни къщи.







