Translations in other languages:
All real estate ads published on imot.bg have been translated into English and published on the partner site
Получихте нова обява по филтър





Промяна на цена на наблюдавана обява


стара цена
нова цена
imot.bg – обяви за продажби и наеми на имоти
Сайт за имоти №1
Translations in other languages:
All real estate ads published on imot.bg have been translated into English and published on the partner site
ДОБАВИ ОБЯВА Редакция на обява
Начало Публикуване Търсене Нови сгради Агенции Новини Кредити + Още... Моят имот
Продава ПАРЦЕЛ
област София, гр. Сливница
до Стадиона
250 700 €
490 326.58 лв.

(58 €, 113.44 лв./m2)
Не се начислява ДДС
Коригирана в 11:40 на 24 септември, 2025 год.
Обявата е посетена 285 пъти.
Площ:
4360 m2
Регулация:
ДА

Описание на имота:


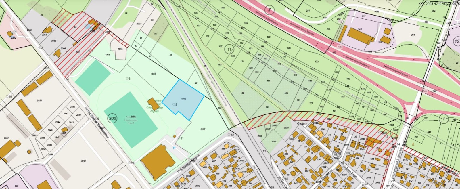
Урегулиран поземлен имот (УПИ) с площ от 4360 кв.м, разположен в близост до Стадиона 'Сливнишки герой', ул.'Паисий Хилендарски', до спортния комплекс Арена, намира се в западната част на град Сливница, само на 25 минути от София. В момента се изгражда бърза ж.п връзка. Градоустройствени параметри: за ниско строителство до 10м. Подходящ за затворен комплекс от къщи, хотелски комплекс, спортни съоръжения, заведения и др. За повече информация и оглед: 'Бокар недвижими имоти', офис 'Неофит Рилски', 0887 09 70 73;
Виж всички обяви в bokar1.bazar.bg или тук
Особености
За жил.строителство
За контакт:
02/910 10 10
Агенция:
БОКАР - НЕДВИЖИМИ ИМОТИ
02/910-10-10, 0887 09 70 73
БОКАР - НЕДВИЖИМИ ИМОТИ logo
Медал за прослужено време
В imot.bg от 2006 г.
bokar1.imot.bg
Адрес:
област София, гр. София, Офис - ул.'Неофит Рилски' 1
http://www.bokar-imoti.com
ИЗПРАТИ ЗАПИТВАНЕ
ИЗПРАТИ ЗАПИТВАНЕТО

Продава ПАРЦЕЛ
област София, гр. Сливница
до Стадиона
Обява: 1r174951647707465

250 700 €
490 326.58 лв.
(58 €, 113.44 лв./m2)

Не се начислява ДДС
ЗАПАЗИ ОБЯВАТА

Местоположение: област София, гр. Сливница, до Стадиона

Виж още имоти от гр. Сливница или още Парцели в гр. Сливница, София
Още обяви в imot.bg
КОНТАКТИ | SMS КОДОВЕ | СТАТИСТИКА | ПОМОЩ | ОБЩИ УСЛОВИЯ | РЕКЛАМА | ТОП ОФЕРТА | Въпроси и предложения към imot.bg
Резон Медия | Имоти | Автомобили | Работа | Новини | Обяви | Преводи и легализация 2002-2025 ® Copyright imot.bg
© imot.bg ползва и препоръчва хостинг услугите на Bulinfo.net
Следвайте ни в: