ПИ 07598.213.35 с площ 3 160 м2
в гр.Бяла, местност Глико.
Трайно предназначение на територията: урбанизирана
Проведена регулация 2008 г. с одобрен ПУП.
При подновяване на статута, платените такси при първата промяна се приспадат !
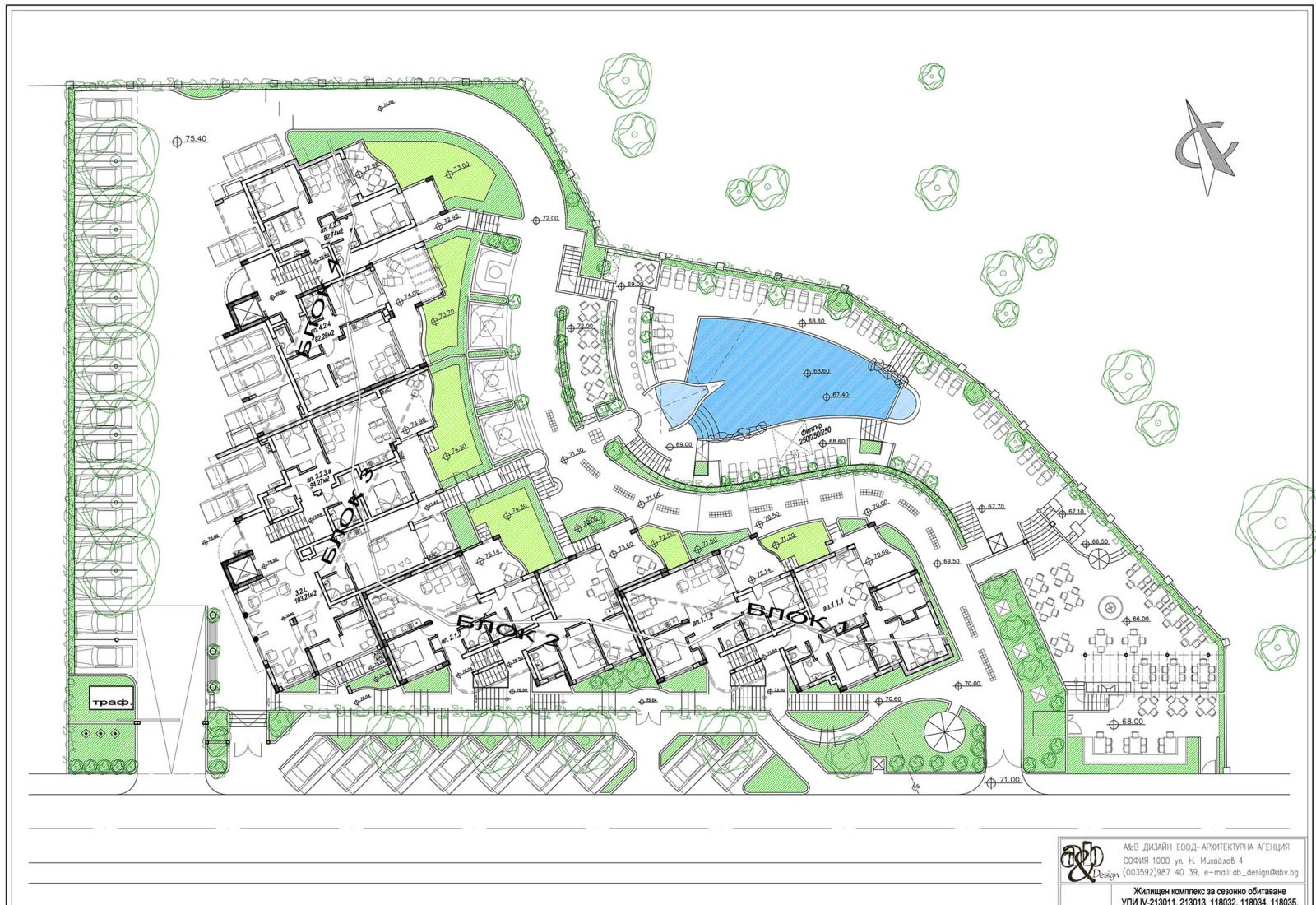
Одобрен проект за ваканционен комплекс от затворен тип.
Строително разрешение. (изтекло)
На първа линия море с изключителна гледка над морето.
Водопровод, канализация и електричество в близост до имота.
Подходящ за хотел, затворен тип комплекс или вилни къщи.



