ПРОДАЖБА ОТ СОБСТВЕНИК! БЕЗ КОМИСИОННА! Цена: 395 000 EUR
Ексклузивен имот с готов проект за луксозна къща в Созопол - Старият град!
Представям ви отличен имот в центъра на Старият град, подходящ както за бизнес или инвестиция, така и за собствено ползване.
За ценители на историческата атмосфера в едно от най-желаните места по българското Черноморие.
Основни характеристики на имота:
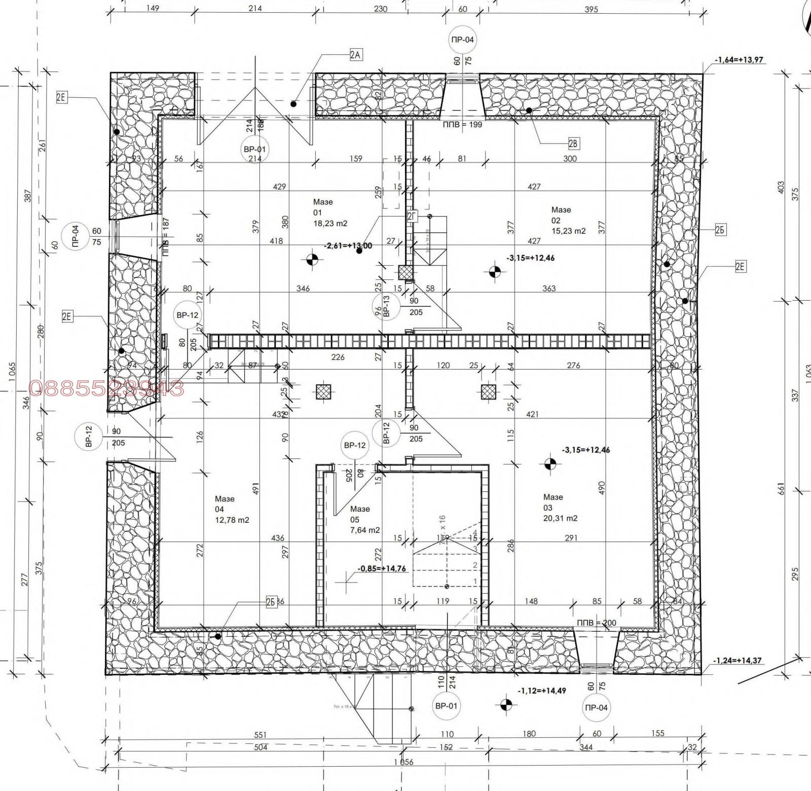
Парцел: 142 кв.м.
РЗП по проект: 403 кв.м.
Статут: Паметник на културата с одобрен проект и Разрешение за строеж реставрация, съобразен с изискванията за историческото наследство.
Готовност: Имотът е изчистен и готов за строителство. Изграден до ниво - полусутерен с готовност за полагане на плоча.
Документация: Пълна проектна документация със всички разрешителни за строеж.
Цена: 395 000 евро
Имотът е собственост на дружество и при продажба се прехвърля фирмата.
Не се дължи ДДС.
Описание на проекта:
Проектът включва четири функционални нива, които предлагат гъвкавост и възможности за разнообразно използване:
1. Полусутерен (първо ниво):
o Площ: 112,5 кв.м.
o Височина на тавана: 3,20 м.
o Възможност за обособяване на два малки апартамента със самостоятелни санитарни възли.
o Разполага с два входа, което предоставя възможност за обособяване в ресторант или бар.
2. Първи и втори етаж:
o Площи:
- Първи етаж - 120 кв.м.
- Втори етаж 117,7 кв.м.
На всеки етаж Всеки етаж предлага два апартамента с дневна, спалня и баня, проектирани за максимален комфорт и уединение.
3. Тавански етаж /мансарден/ - 117,7 кв.м:
o Предоставя допълнително използваемо пространство от 57 кв.м. за обособяване на един двустаен апартамент или за други цели.
Предимства на имота:
Изключително местоположение: В центъра на Старият Созопол, на метри от античните руини, калдъръмените улички и живописната пристанищна зона.
Инвестиционен потенциал: Високо търсене за наеми благодарение на туристическия поток и статута на Созопол като културна дестинация.
Автентичност и модерен комфорт: Проектът запазва историческото обаяние на Стария град, като същевременно предлага съвременни удобства.
Многофункционалност: Подходящ за луксозна еднофамилна къща, апартаменти за наемане или фирмена резиденция.
Защо да инвестирате в този имот?
Висока възвръщаемост: Благодарение на стратегическото местоположение и постоянния туристически интерес, имотът предлага отлична възможност за стабилни приходи от наеми.
Културна стойност: Притежаването на имот в Стария Созопол е шанс да се сдобиете с частица от богатото културно наследство на България.
Готовност за строителство: С всички необходими документи и разрешения, процесът на изграждане е лесен и бърз. Възможност за незабавно изграждане след летния сезон.
За повече информация на посоченият имейл или на тел.







