Компания Х представя на Вашето внимание парцел с ФРОНТАЛНА ГЛЕДКА море в Поморие! Чудесно място за инвестиция, само на 15мин. от гр. Бургас.
МЕСТОПОЛОЖЕНИЕ: Имотът се намира в м-ст Лахана, от страната на морето, 200м Ви делят от плажа! Комбинация от спираща дъха гледка, чист въздух и тишина, с удобствата на големия град.
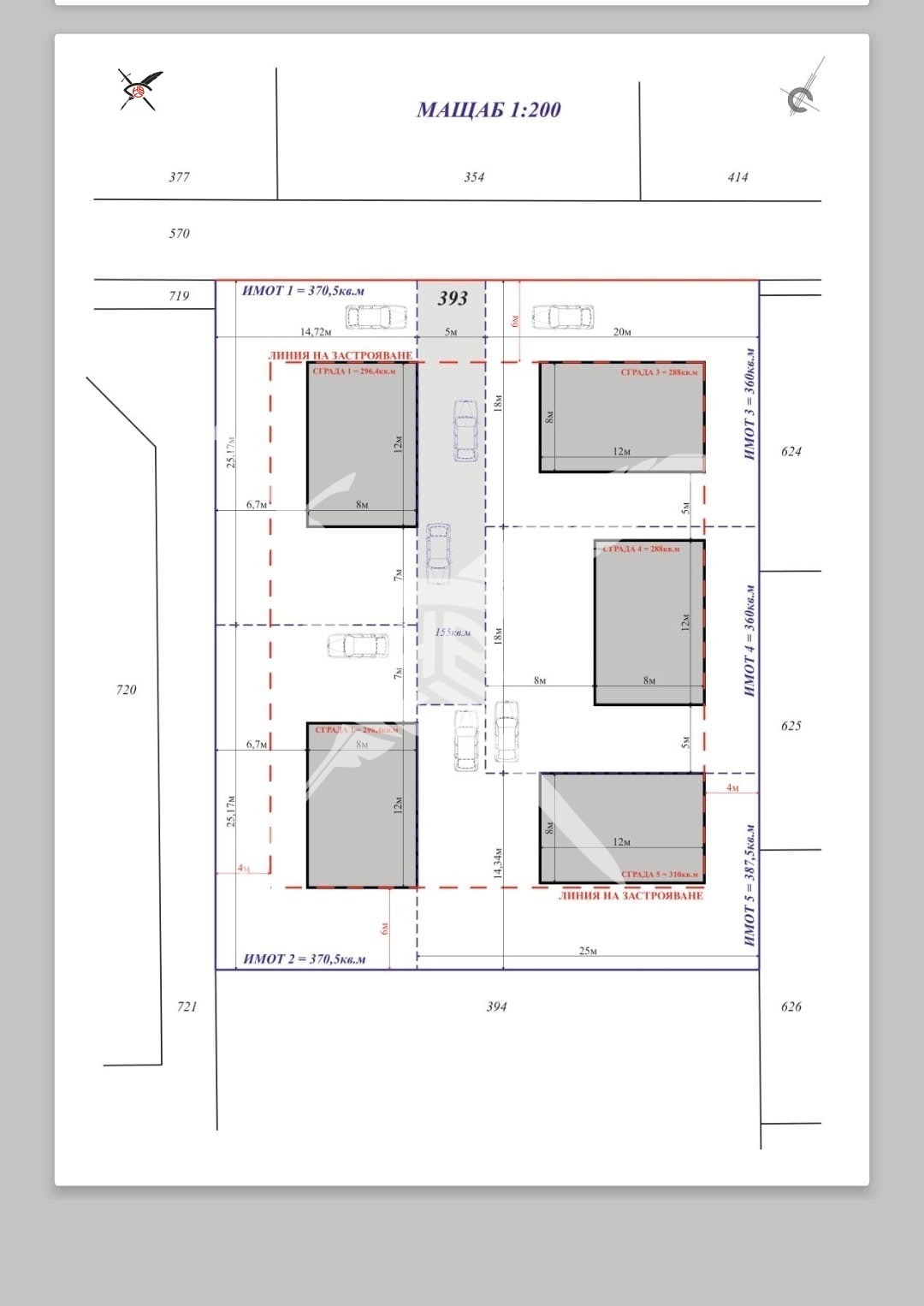
РАЗПРЕДЕЛЕНИЕ: Парцелът е с площ от 2000кв.м., има ПУП, предстои вкарване в регулация. На парцела може да се изгради комплекс от 5 еднофамилни къщи с РЗП от 288кв.м. до 310кв.м. Всяка къща ще разполага с дворно място от 370кв.м. С възможност за закупуване само на един парцел по избор.
СЪСТОЯНИЕ: Парцелът е без денивелация, граничи с полски път, на който има лице 40м.
Заповядайте да Ви го покажем. Използвайки нашите услуги Вие ще превърнете закупуването на новия си дом в едно приятно изживяване, ще получите персонален консултант, съдействие при кандидатстване за кредит от всички банки в България, интериорни дизайнери и екип, който да се погрижи за нужните документи по Вашата сделка. На Ваше разположение сме всеки ден, от понеделник до неделя от 09:00 до 20:00ч. Възползвайте се от безплатна консултация в наш офис, където ще ви спестим време и ще ви запознаем с всички актуални имоти в България, отговарящи на Вашето търсене. Свържете се с нас на 0887779990 или на 0882009283 и цитирайте кода към имота: 39292







