Translations in other languages:
All real estate ads published on
imot.bg
have been translated into English and published on the partner site
Continue
Получихте нова обява по филтър
Промяна на цена на наблюдавана обява
стара цена
нова цена
Сайт за имоти
№1
Translations in other languages:
All real estate ads published on
imot.bg
have been translated into English and published on the partner site
Continue
ДОБАВИ ОБЯВА
Редакция на обява
Вход
|
Нова Регистрация
Начало
Добави обява
Търсене
Агенции
Новини
Кредити
+ Още...
Средни цени на имотите
Колко струва моят имот?
Архивни данни
Имоти с падащи цени
Нови сгради
Вход / Регистрация
Избор на рубрика
|
Продава
|
Дава под наем
|
Купува
|
Търси да наеме
|
Заменя
|
Съквартиранти
Колко струва моят имот?
НОВО ТЪРСЕНЕ
|
КОРЕКЦИЯ НА ТЪРСЕНЕТО
|
РЕЗУЛТАТИ ОТ ТЪРСЕНЕТО
Увеличи
1
/
1
459 200 €
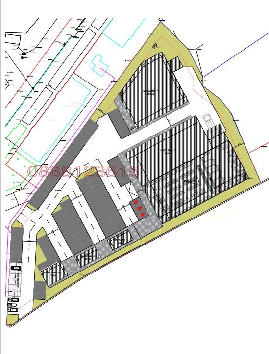
898 117.14 лв.,, Продава ПАРЦЕЛ, област Пловдив, гр. Кричим
Площ: 6560 кв.м, Частно лице, Регулация: ДА, Ток: ДА, Вода: ДА,
Продава ПАРЦЕЛ
област Пловдив, гр. Кричим
Идеален център
Виж карта
459 200 €
898 117.14 лв.
(70 €, 136.91 лв./m
2
)
Цената е без ДДС
История на цената
Коригирана в 22:30 на 17 февруари, 2026 год.
Обявата е посетена
3402
пъти.
Площ:
6560 m
2
Регулация:
ДА
Ток:
ДА
Вода:
ДА
Моята бележка
(видима само за Вас)
Моята оценка
(видима само за Вас)
Съобщи за нередност
и блокирай Агенцията
09:56 ч., 16.03.2026
Изтрий
Редактирай
Отказ
Запиши
Оценка:
от 10
09:56 ч., 16.03.2026
(Ще получите SMS с ключ за верификация)
Съгласявам се с
общите условия
и
политики за защита на личните данни
Отказ
Изпрати
Описание на имота:
Парцел в идеалния център на гр. Кричим. С голямо лице към река Въча и на пътя Стамболийски - Девин.
Подходящ за Ритейл парк, Жилищен проект, старчески дом, хотел , Развлекателен комплекс.
Особености
Виза
За пром.строителство
За жил.строителство
За контакт:
0888128615
/Частно лице/
ИЗПРАТИ ЗАПИТВАНЕ
Вашето име:
Вашия телефон:
Вашия е-mail:
Запитване: (до 1000 символа
)
ИЗПРАТИ ЗАПИТВАНЕТО
Съгласявам се с
общите условия
и
политики за защита на личните данни
Продава ПАРЦЕЛ
област Пловдив, гр. Кричим
Идеален център
Обява: 1r173557706841496
459 200 €
898 117.14 лв.
История на цената
(70 €, 136.91 лв./m
2
)
Цената е без ДДС
0888128615
/Частно лице/
Изпрати E-mail до продавача
ЗАПАЗИ ОБЯВАТА
Сподели:
Местоположение:
област Пловдив, гр. Кричим, Идеален център
Виж още
имоти от гр. Кричим
или
още Парцели в гр. Кричим, Пловдив
Още обяви в imot.bg
Продава ПАРЦЕЛ
46 500 €
90 946.10 лв.
(600 кв.м)
област Пловдив гр. Кричим
Продава ПАРЦЕЛ
77 900 €
152 359.16 лв.
(825 кв.м)
област Пловдив гр. Кричим
Продава ПАРЦЕЛ
24 500 €
47 917.84 лв.
(2703 кв.м)
област Пловдив гр. Кричим
Продава ПАРЦЕЛ
24 950 €
48 797.96 лв.
(2703 кв.м)
област Пловдив гр. Кричим
Продава ПАРЦЕЛ
76 900 €
150 403.33 лв.
(825 кв.м)
област Пловдив гр. Кричим
Продава ПАРЦЕЛ
68 000 €
132 996.44 лв.
(548 кв.м)
област Пловдив гр. Кричим
Продава ПАРЦЕЛ
35 250 €
68 943.01 лв.
(665 кв.м)
област Пловдив с. Брестовица
Продава ПАРЦЕЛ
73 999 €
144 729.46 лв.
(723 кв.м)
област Пловдив с. Първенец
Продажби
област Пловдив
гр. Кричим
Парцели
Въпроси и предложения към imot.bg
КОНТАКТИ
|
SMS КОДОВЕ
|
ПОМОЩ
|
ОБЩИ УСЛОВИЯ
|
РЕКЛАМА
|
ЗАЩИТА НА ЛИЧНИТЕ ДАННИ
|
КАРТА НА САЙТА
|
Резон Медия
|
Автомобили
|
Работа
|
Новини
|
Обяви
2002-2026 ® Copyright imot.bg
©
imot.bg
ползва и препоръчва
хостинг услугите
на
Следвайте ни в: