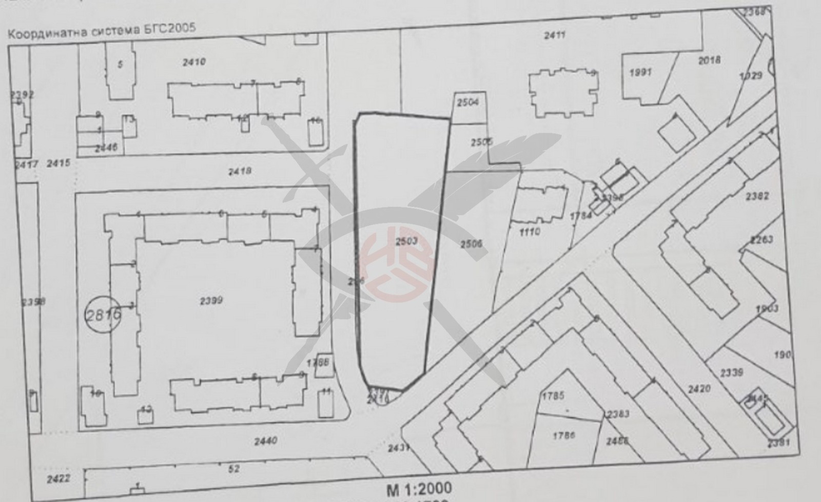
МЕСТОПОЛОЖЕНИЕ: В влизост до 104 ОУ Иван Богоров.
ПЛОЩ: 4387 кв.м.
ОСОБЕНОСТИ: В регулация.
Парцела е предвиден за детска градина, но може да се смени статута и да се построи друго.
Изрядни документи. Готов за сделка !
Заповядайте да Ви го покажем. Използвайки нашите услуги Вие ще получите персонален консултант, съдействие при кандидатстване за кредит от всички банки в България, интериорни дизайнери и екип, който да се погрижи за нужните документи по Вашата сделка. На Ваше разположение сме всеки ден, от понеделник до неделя от 09:00 до 20:00ч. Възползвайте се от безплатна консултация в наш офис, където ще ви спестим време и ще ви запознаем с всички актуални имоти в България, отговарящи на Вашето търсене. Свържете се с нас на 0887 77 99 90 или на 0886 12 12 57 и цитирайте кода към имота:74035.
Виж всички обяви в exnvd.bazar.bg или тук
        
       
         
            






