на 17,6 км, 15 минути южно от Варна.
3 съседни собствени парцела с южно изложение в центъра на село Китка.
С влязъл в сила ПУП и ПРЗ, с издадени и съгласувани скица-виза за проектиране на жилищни сгради и становище за присъединяване към Електропреносна и ВиК мрежи.
С готови примерни проекти за строеж на къщи в тоскански винтидж стил с разгъната застроена площ 225 кв.м, с 3,4, или 5 спални, с прогнозен бюджет за изграждането им 150-165 хил. .
С готови изкопи, излят подложен бетон.
Тихо, спокойно и сигурно място, в близост до курорта Камчия, природни резервати и красиви плажове.
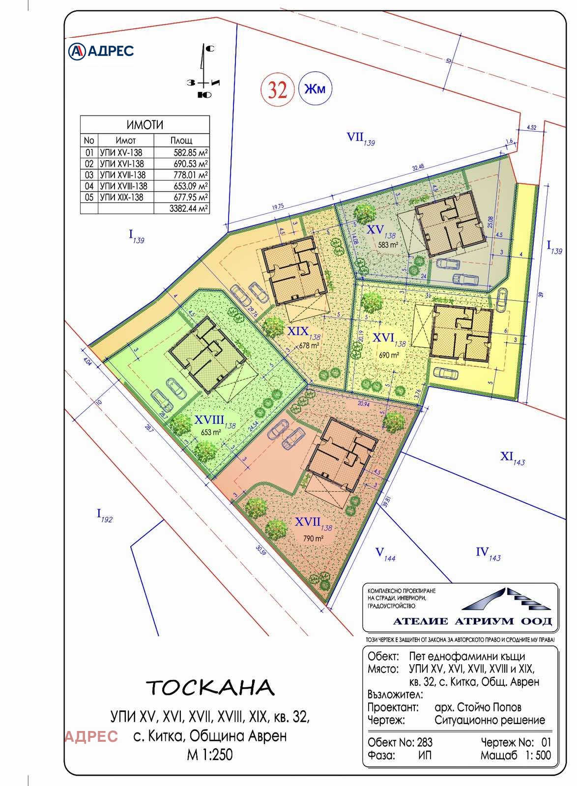
УПИ XIX - 678 кв.м. - 32000
УПИ XV - 583 кв.м. - 27000
УПИ XVI - 690 кв.м. - 27000
Виж всички обяви в adress.bazar.bg или тук
        
       
         
            






