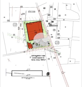
Нова Намалена Цена! Агенция Живена предлага за продажба парцел с площ 8506 кв.м в регулация, УПИ 8115 кв.м., в с.Езерово, община Белослав. Има изготвен ПУП-ПРЗ с показатели на застрояване: височина до 10 м , плътност - 80 %, кинт- интензитет на застрояване 2,5. Парцелът е с влязла в сила заповед и със статут на 'складови дейности' с РЗП до 4000 кв.м. Изключителен бизнес имот, с удобен достъп, големи площи и подходящ за построяване и изграждане на складови бази, фотоволтаици, силози, плоски складове, зърнобаза, производствен или логистичен център и др. Комуникации ток и вода на границата на имота със становища от ВИК и Енерго Про за присъединяване. Трафопост и шахта за вода са на границата на имота. Достъпът до имота е изключително лесен и удобен по асфалтиран път. Има възможност за закупуване на съседни парцели. Имота се намира на 14 км от град Варна и в непосредствена близост до крайезерния път на град Варна, в близост до ТЕЦ Варна, Пристанище варна Запад, Промишлена зона Девня, Контейнерно депо на ЮниМастърс. . Агенция ЖИВЕНА извършва необходимите проверки на имота и организира всички етапи на сделката до нейното финализиране. Оказваме съдействие за отпускане на банков кредит. Оферта 6686







