Подходящ е за построяване на две вили/къщи за гости за лично ползване или отдаване под наем. Районът е търсен целогодишно - както за прохладна почивка през лятото, така и през зимата, заради ски курорта.
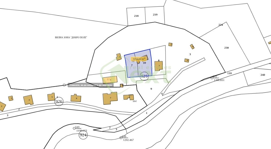
Издадена виза от 07.2023г със следните параметри на застрояване:
височина на застрояване - до 7м;
кинт - 0.8;
плътност на застрояване - 40%;
минимална озеленена площ - 50%.
Ток и вода до парцела.
Агенцията работи с колеги. За повече информация:
Васил Сугарев
0888940155
Виж всички обяви в next_re.bazar.bg или тук
        
       
         
         
         
         
         
         
         
             
             
             
             
             
             
            


