Продават се имоти, подходящ за търговско, промишлено и индустриално застрояване. Повечето от имотите се намира с голямо лице на международния път Е80 (бул. Европейски път продължението на бул. Сливница) посока Калотина (Сърбия - Западна Европа). Намират се в района на с. Пролеша - община Божурище, на разстояние 9 км. от София в западна посока.
Имотите които се продават са 14 на брой. Квадратурата на всеки имот е различна. Най-малкия имот е с квадратура от 1200 кв.м., а най-големият е с площ от 10 200 кв.м. Има възможност за обединяване на съседни имоти с цел постигане на по голяма квадратура.
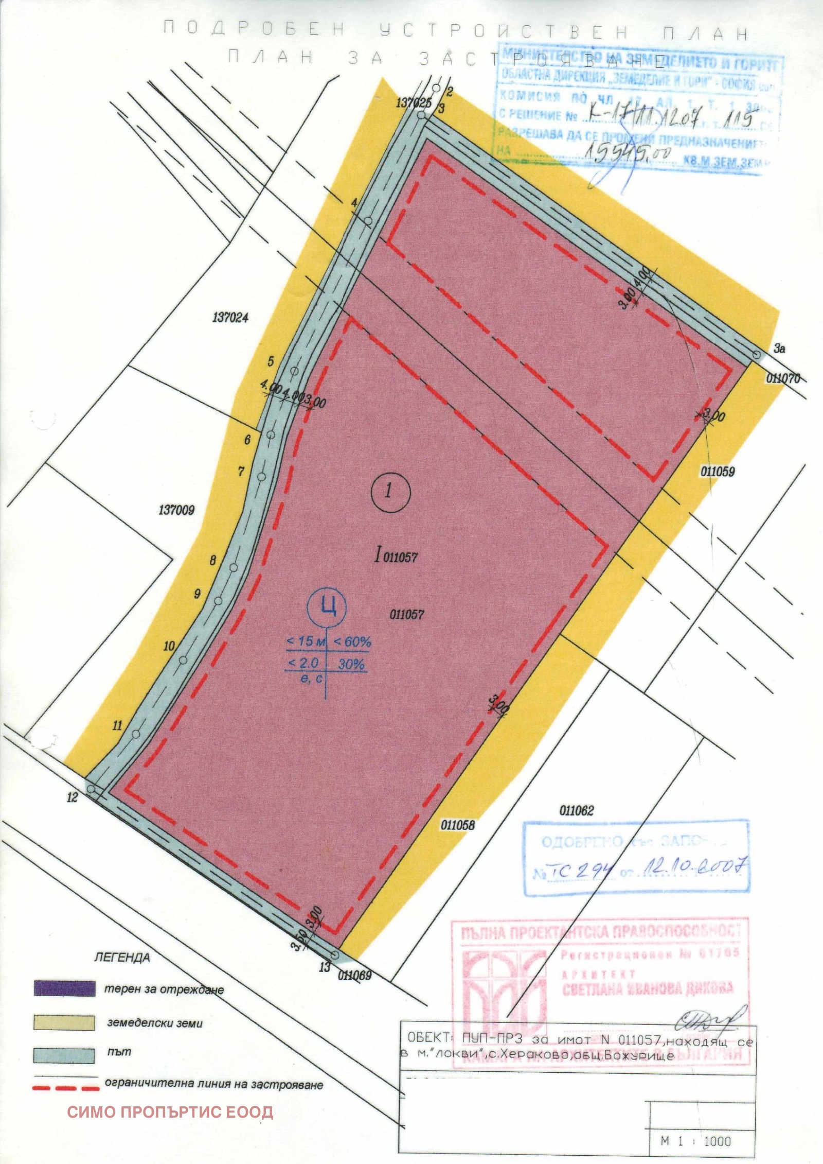
Устройствените зони, в които попадат имотите са ПП и Ц с показатели на застрояване
КИНТ: от 2 до 2,5
Плътност: от 60% до 80
Прилагаме и скици от регулациите на повечето имоти, които се продават с точните показатели на всеки отделен имот.
Запознати сме с цялата история от придобиването на собствеността и на 14-те имота, управлението им през годините и сегашния му статут и ситуация.
Имотите са подходящи са за изграждане на склад, фабрика, фирмено представителство, изложбено-търговска зала, офиси, хотел и много др.
Подходящи са за покупка, както за СОБСТВЕНО ПОЛЗВАНЕ, така и с ИНВЕСТИЦИОННА ЦЕЛ, поради голямото развитие и потенциал в района и заради характеристиките на всеки имот.
АГЕНЦИЯТА НИ РАЗПОЛАГА И С МНОГО ДРУГИ ИМОТИ с различна квадратура В СЪСЕДНИ РАЙОН ВСИЧКИ, КОИТО СА С ЛИЦЕ НА ПЪТЯ Е80 - БУЛ. ЕВРОПЕЙСКИ ПЪТ, ПО НЕГОВОТО ПРОТЕЖЕНИЕ ОТ РАЙОНА НА С. ХЕРАКОВО ДО ГР. БОЖУРИЩЕ ВКЛЮЧИТЕЛНО!!!
ОБЩАТА КВАДРАТУРА НА ВСИЧКИ ИМОТИ С КОИТО РАЗПОЛАГАМЕ И ПРЕДЛАГАМЕ Е НАД 1000 ДКА.!!!
СОБСТВЕНОСТТА НА ВСИЧКИ НАШИ ИМОТИ Е БЕЗУПРЕЧНА И НАПЪЛНО УРЕДЕНА, ГАРАНТИРАНО ПРИ ЮРИДИЧЕСКА ПРОВЕРКА!!!
Запознати сме с цялата история от придобиването на собствеността и на всичките имоти, управлението им през годините и сегашния му статут и ситуация. Агенцията ни се намира в пряк контакт със собствениците всичките имот и бихме могли ДА ДОГОВОРИМ ДОБРИ И ГЪВКАВИ УСЛОВИЯ за сделка.
БЛАГОДАРИМ ВИ, ЧЕ ОТДЕЛИХТЕ ВРЕМЕ ЗА ТАЗИ ОБЯВА! ЩЕ СЕ РАДВАМЕ ДА СТАНЕТЕ НАШИ КЛИЕНТИ! БЪДЕТЕ ЗДРАВИ!
За допълнителна информация и огледи: 0889 498 882 Самуил Желев







