За повече информация обадете ни се на тел: 0882 817 455 или 02 425 68 17 и цитирайте референтния номер на имота: Sf 469.
Отговорен брокер: Виктор Вучелийски
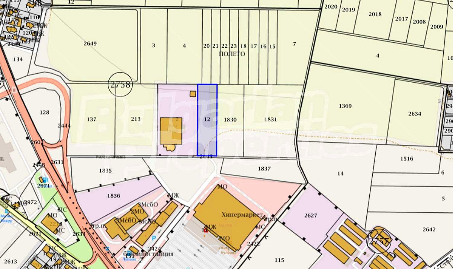
Чудесно бизнес предложение за закупуване на 7098 кв.м. земя за застрояване в развиващ се като промишлена зона район. Подходящ за безвредно производство и складова дейност, като се допуска 30% от застрояването да е жилищно.
Регулираният парцел разполага със следните параметри на застрояване:
Плътност 40%;
КИНТ 1.2.
Парцелът граничи с ток, вода, канализация и газопровод.
Имотът е подходящ за промишлено застрояване и негов безспорен плюс е отличното му местонахождение, зад магазин Метро на бул. Европа, в област с чудесни комуникационни връзки с основни точки в столицата. ...







