Translations in other languages:
All real estate ads published on imot.bg have been translated into English and published on the partner site
Получихте нова обява по филтър





Промяна на цена на наблюдавана обява


стара цена
нова цена
imot.bg – обяви за продажби и наеми на имоти
Сайт за имоти №1
Translations in other languages:
All real estate ads published on imot.bg have been translated into English and published on the partner site
ДОБАВИ ОБЯВА Редакция на обява
Начало Публикуване Търсене Нови сгради Агенции Новини Кредити + Още... Моят имот
Продава ПАРЦЕЛ
област Пловдив, с. Оризари
238 250 €
465 976.50 лв.

(50 €, 97.79 лв./m2)
Не се начислява ДДС
Коригирана в 10:13 на 24 октомври, 2025 год.
Обявата е посетена 31 пъти.
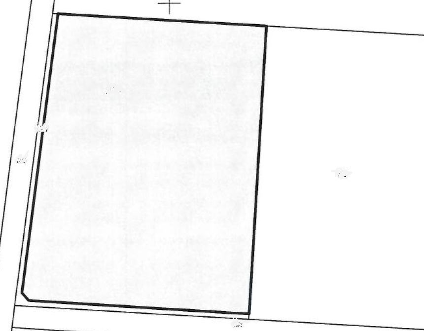
Площ:
4765 m2

Описание на имота:


Оф. 74415 Предлагаме Ви поземлен имот с площ 4765 кв.м. с ПУП за производствени и складови дейности в с. Оризари. Имота се намира на асфалтиран път. Обявената цена е без ДДС. Услугите, които предлага нашата фирма са - Безплатни юридически консултации, съдействие при одобрение на ипотечен, потребителски и всякакъв друг кредит при възможно най-добри условия за клиента. Работим с всички банки. Безплатни огледи. За контакти: Георги Ветин 0898456999
Виж всички обяви в lidera.bazar.bg или тук
Особености
За пром.строителство
За контакт:
0898456999
Брокер:
Георги Ветин
032/ 622-227 .0898456999
Още оферти от брокера: Продава | Дава под наем | Купува | Наема
Агенция:
ЛИДЕРА
032/622 227; 0898433193; 0882/646 888
ЛИДЕРА logo
Медал за прослужено време
В imot.bg от 2004 г.
lidera.imot.bg
Адрес:
област Пловдив, гр. Пловдив, ул. 'Гладстон' 56, ет.2
http://lidera.imot.bg
ИЗПРАТИ ЗАПИТВАНЕ
ИЗПРАТИ ЗАПИТВАНЕТО

Продава ПАРЦЕЛ
област Пловдив, с. Оризари
Обява: 1r168008267519118

238 250 €
465 976.50 лв.
(50 €, 97.79 лв./m2)

Не се начислява ДДС
ЗАПАЗИ ОБЯВАТА

Местоположение: област Пловдив, с. Оризари

Виж още имоти от с. Оризари или още Парцели в с. Оризари, Пловдив
Още обяви в imot.bg
КОНТАКТИ | SMS КОДОВЕ | СТАТИСТИКА | ПОМОЩ | ОБЩИ УСЛОВИЯ | РЕКЛАМА | ТОП ОФЕРТА | Въпроси и предложения към imot.bg
Резон Медия | Имоти | Автомобили | Работа | Новини | Обяви | Преводи и легализация 2002-2025 ® Copyright imot.bg
© imot.bg ползва и препоръчва хостинг услугите на Bulinfo.net
Следвайте ни в: