Translations in other languages:
All real estate ads published on imot.bg have been translated into English and published on the partner site
Получихте нова обява по филтър





Промяна на цена на наблюдавана обява


стара цена
нова цена
imot.bg – обяви за продажби и наеми на имоти
Сайт за имоти №1
Translations in other languages:
All real estate ads published on imot.bg have been translated into English and published on the partner site
ДОБАВИ ОБЯВА Редакция на обява
Начало Публикуване Търсене Нови сгради Агенции Новини Кредити + Още... Моят имот
Продава ПАРЦЕЛ
област Пловдив, с. Йоаким Груево
642 400 €
1 256 425.19 лв.

(55 €, 107.57 лв./m2)
Цената е без ДДС
История на цената
Коригирана в 9:51 на 4 септември, 2025 год.
Обявата е посетена 2547 пъти.
Площ:
11680 m2
Регулация:
ДА
Ток:
ДА
Вода:
ДА

Описание на имота:


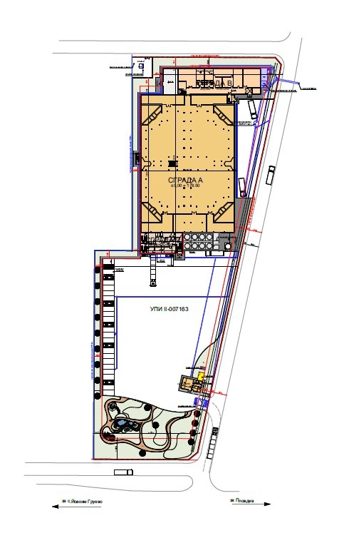
Прадлагаме отлично УПИ с лице на асфалтов път, с ПУП и всички разрешителни за строеж на рибна ферма с РЗП 6100м2. Има разрешение за водохващане и водоизхвърляне, като дебита на сондата за водохващане е 12л/сек. Разрешено ел.захранване 700 киловата. Може да се използва за хранително или друго производство или складова база. Отлични местоположение и комуникации. Има открита строителна площадка. ВЪЗМОЖНОСТ ЗА ЗАПОЧВАНЕ НА СТРОИТЕЛСТВО ВЕДНАГА!
Виж всички обяви в foxestate.bazar.bg или тук
Особености
За пром.строителство
За контакт:
0877977576
Агенция:
ФОКС ИСТЕЙТС БЪЛГЕРИЯ
0885335840
ФОКС ИСТЕЙТС БЪЛГЕРИЯ logo
Медал за прослужено време
В imot.bg от 2005 г.
foxestate.imot.bg
Адрес:
област Пловдив, гр. Пловдив, ул. Любен Каравелов 9Б
http://www.foxestates.bg
ИЗПРАТИ ЗАПИТВАНЕ
ИЗПРАТИ ЗАПИТВАНЕТО

Продава ПАРЦЕЛ
област Пловдив, с. Йоаким Груево
Обява: 1r166694401600446

642 400 €
1 256 425.19 лв.
История на цената
(55 €, 107.57 лв./m2)

Цената е без ДДС
ЗАПАЗИ ОБЯВАТА

Местоположение: област Пловдив, с. Йоаким Груево

Виж още имоти от с. Йоаким Груево или още Парцели в с. Йоаким Груево, Пловдив
Още обяви в imot.bg
КОНТАКТИ | SMS КОДОВЕ | СТАТИСТИКА | ПОМОЩ | ОБЩИ УСЛОВИЯ | РЕКЛАМА | ТОП ОФЕРТА | Въпроси и предложения към imot.bg
Резон Медия | Имоти | Автомобили | Работа | Новини | Обяви | Преводи и легализация 2002-2025 ® Copyright imot.bg
© imot.bg ползва и препоръчва хостинг услугите на Bulinfo.net
Следвайте ни в: