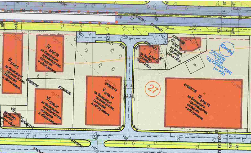
ТОП локация! В непосредствена близост до пътният възел на Северната скоростна тангента, на първа линия на Чепинско шосе, с голямо лице към шосето. Към момента попада в зона СМФ2, очаква се скоро и приемане на Регулационен план. На една от снимките, е показана и регулацията според плана, който се очаква да бъде приет. Парцелът е равен, с правилна форма, подходящ е за построяване на склад, бензиностанция или чисто производство. Съседният парцел е с идентична квадратура и също може да бъде закупен. Възможност за отдаване под наем - цена по споразумение. За повече информация - 0894 668 148 - Захари Михов.







