ref.N 6767
www.kalchev.com - имотите във Варна и по черноморието
Семеен хотел на 5 км от морето.
РЗП 477 кв.м.
Парцел 1266 кв.м.
Сградата е на груб строеж, с акт 14. Има пълна проектна документация.
Има регистрация като обект за селски туризъм - почивна база с прилежащ търговски обект.
Има съгласуван проект за изграждане на покривна, фотоволтаична електрическа централа с мощност 4,6 kW.
Възможност за довършване на строителството по желание на купувача.
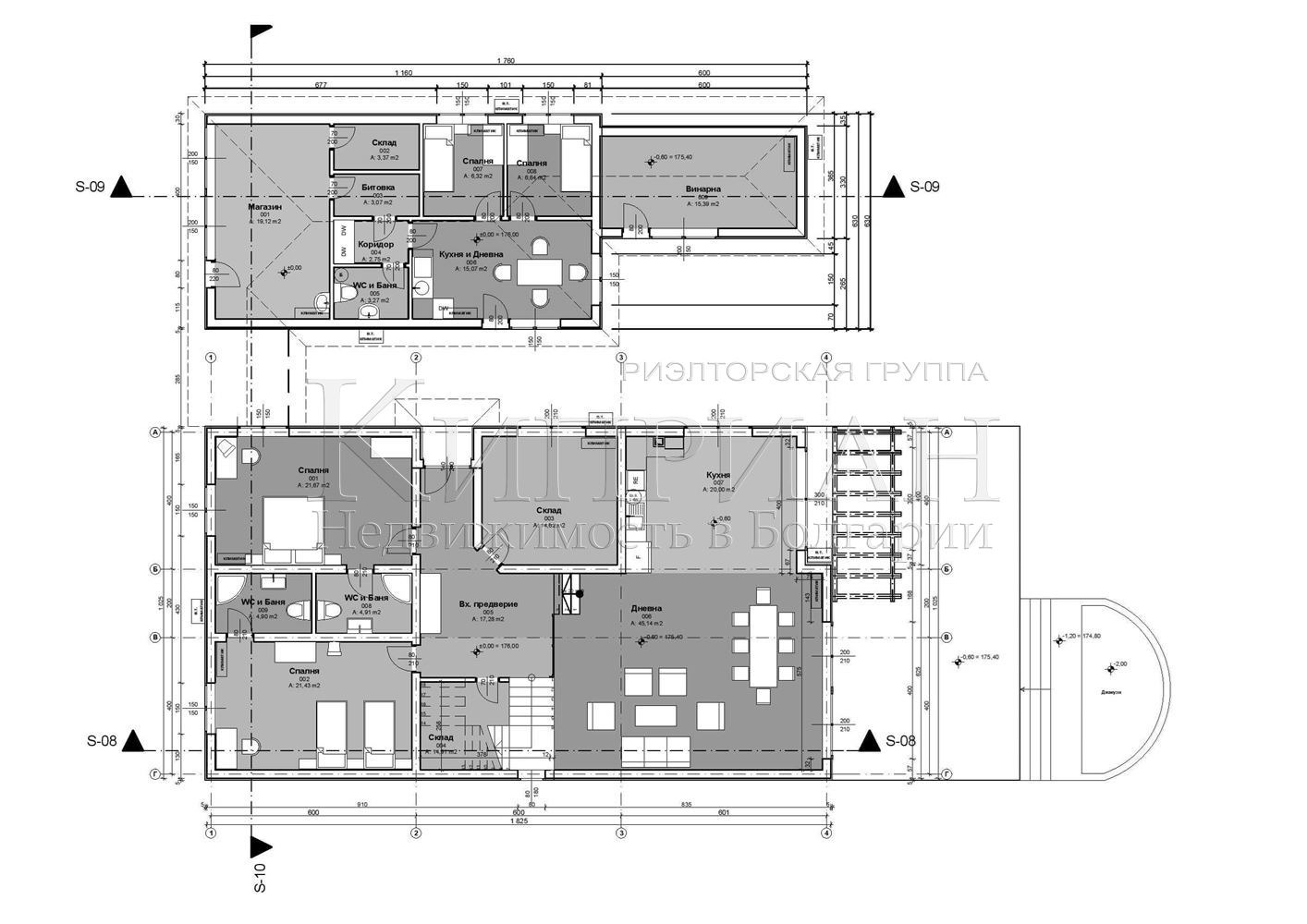
Комплексът се състои от обособена хотелска част и отделна сграда за персонал и обслужващи помещения.
Сградата е завършена на груб строеж - железобетонна конструкция (колони и плочи), стени от тухлена зидария, покрив с керемиди.
Парцелът е с голямо лице към основния път за плаж Кара дере.
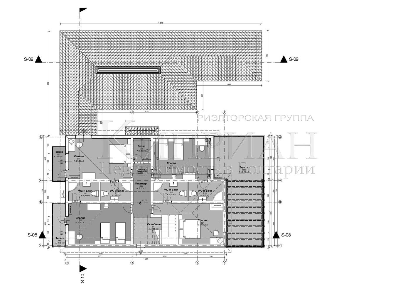
Хотелска част 385 кв.м.
Първи етаж - две спални, всяка със собствена баня. Голяма дневна 45 кв.м, кухненска част 16 кв.м, помещение за спорт, сауна. Голямо, централно преддверие за удобство на посетителите.
Втори етаж - 4 спални, всяка със собствена баня. Помещение за склад и централно отопление. Голяма, панорамна тераса 40 кв.м с южен изглед към гора и море.
Сграда за персонал и сервизни помещения 92 кв.м.
Две спални. Дневна с кухненски бокс. Баня-тоалет. Помещение за перални и сушилни.
Помещение 20 кв.м с широка витрина към пътя, предназначено за търговски обект. Помещение за персонал. Склад.
Помещение 15 кв.м за складиране и продажба на вино.






