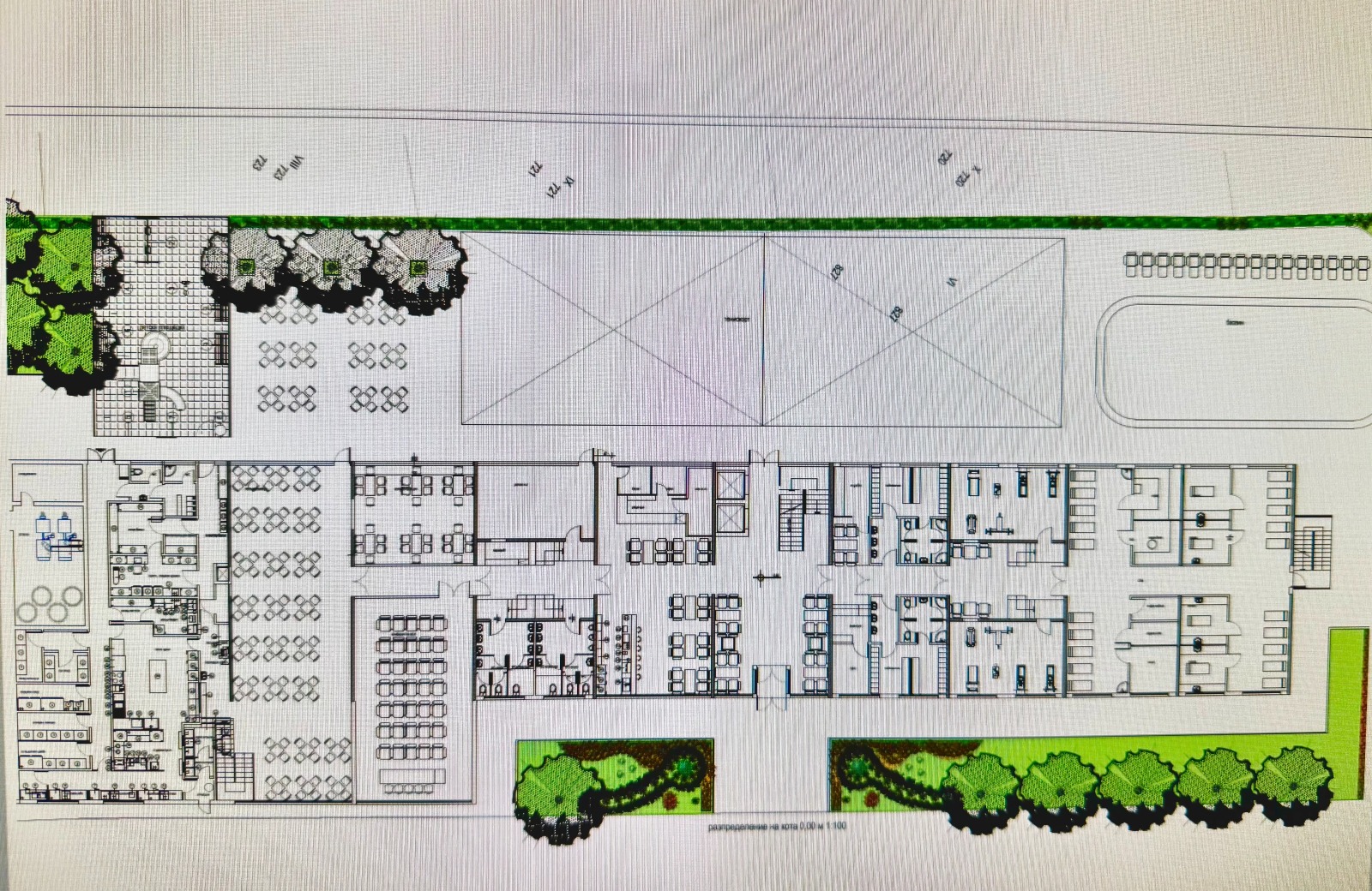
Сградата е с издаден акт 14, ЗП 944 кв.м., РЗП 4364 кв.м., заедно с УПИ 2915 кв.м. Възможна смяна на статута.
Локация: на километър от път 871 /София-Бургас/, на 12 километра от автомагистрала Хемус , през която има бърза връзка с автомагистралите Тракия , Струма и летище София (15 мин.).
Сградата е с изградени комуникаци- вода, канал и собствен трансформатор/трафопост. Предвидени по проект: партер - ресторант, кухня, складове, СПА център, конферентна зала, рецепция и др.; втори етаж - 24 двойни стаи със санитарен възел + четири апартамента; трети и четвърти етаж са идентични на втори; подпокривно пространство - 4 стаи. Общо 72 двойни стаи и 12 апартамента. Външен басейн и тени скортове. За повече информация и организиране на огледи- Венцислав Петров: +359 888 42 80 60.
Виж всички обяви в bulring.bazar.bg или тук
        
       
         
         
         
         
         
             
             
             
             
            




