Индустриално складово помещение с търговска зона и офис
ID: Base Plus 4
Продава се складово помещение, част от индустриален парк без аналог - Industrial Hub Plovdiv Ring West I . Подходящо помещение за компании, които търсят стратегическо и функционално пространство за своя бизнес.
Площи:
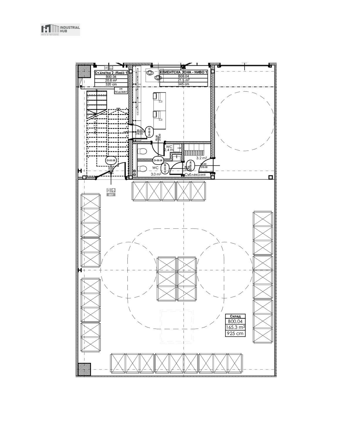
-Застроена площ (ЗП): 228 m²
-Разгъната застроена площ (РЗП): 313 m²
-Склад: 165,3 m²
-Офис: 41,9 m²
-Търговски обект: 21,5 m²
-Битови помещения: 24,1 m²
Паркоместа и зони за индивиуално ползване:
-Зона за паркиране и зареждане: 83 m²
-Паркоместа: 3 бр.
Конструкция и материали:
-Монтажна стоманобетонова конструкция
-Окачена стъклена фасада
-Сандвич панели с минерална вата
-Покрив с TPO мембрана (312 kN/m²)
-Шлайфана бетонова подова настилка
-Алуминиева дограма
-Огнеустойчиви врати до 90 мин.
Технически параметри:
-Височина склад 9m до ЛТ ламарина
-Височина шоурум/офис 4m до ЛТ ламарина
-Размери на товарем вход: Ш 3м. х В 3,5м.
-Осветеност: 566 lux
-Инсталирана мощност: 50 kW
-Максимална мощност: 30 kW
-Трифазно електрическо табло
Имотът е самостоятелен с индивидуален кадастрален идентификатор и отделни партиди за ток и вода.Разполага с удобен достъп за товарни автомобили и възможност за комбиниране на склад, офис и търговска дейност на едно място.
Инвеститорът осигурява професионална поддръжка на обекта:
-FTP интернет инфраструктура
-24/7 видеонаблюдение
-Зарядни станции за електромобили
-Пълна ВиК система
-Дренаж и локална пречиствателна станция
-Дизелов агрегат
Първият индустриален парк в България за малкия и среден бизнес - Industrial Hub Plovdiv Ring West I.
www.industrialhub.bg







