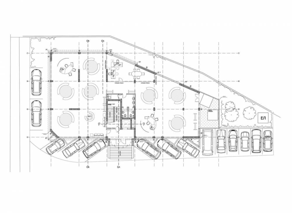
Сграда намираща се на границата между с. Долни Богров и с. Горни Богров. Проектирана за ''Административна сграда с шоурум'. Бърз достъп по бул. Ботевградско шосе. Незавършен проект със сериозни потенциали и опция за довършване от инвеститора. Ако бизнесът ви се разраства, ако сте производител, ако представител на стоки от чужбина това е мястото. Подходяща за внос и дистрибуция на стоки, шоурум, склад, офис зони, място за заход на камиони. Може да се използва също за кухня майка. Може да се отдава под наем дори и в този вид за зона за игра на пейнтбол. И всичко това на цената на един апартамент в София. Височина на сградата 12.90м., РЗП - 1068 кв.м., ЗП 408,07 кв.м. Парцел с големина 863 кв.м. Състои се от сутерен с височина на таваните 3,5 м
По проект - 14 бр. паркоместа.
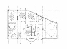
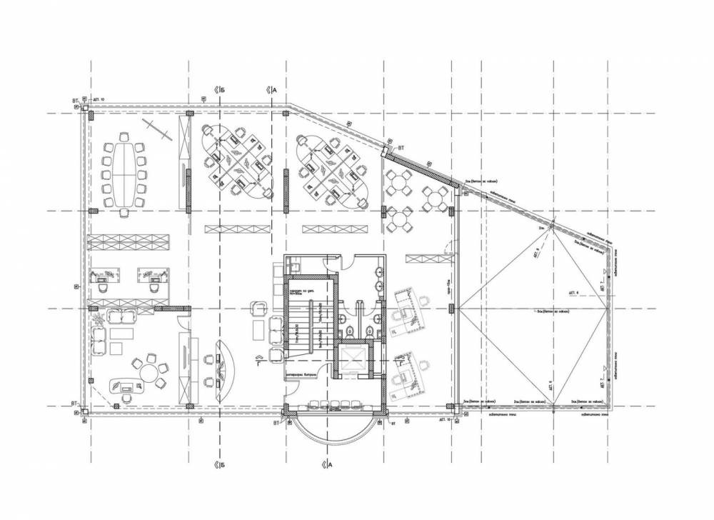
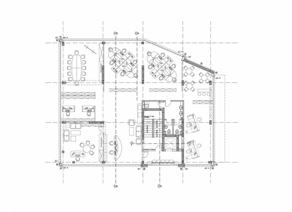
Ниво 1 - шоурум - височина на таваните 3,5 м.,
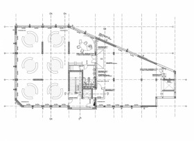
Ниво 2 - офис зона с тераса - височина на таваните 2,7 м.
Ниво 3 - офис зона, височина на таваните 2,7 м.
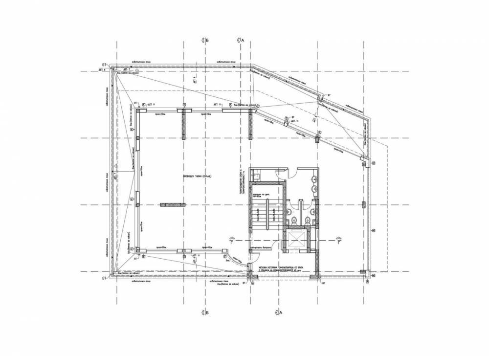
Ниво 4 - складова част, височина на таваните 2,3 м. Подемна платформа, проектирана в задната част на сградата.
Повече от 10 действащи фирми с изнесен бизнес наблизо: автокъщи, гуми център, търговски и производствени цехове. В непосредствена близост до обект бензиностанция Лукойл. Мястото е комуникативно и видимо, с лице към бул. Ботевградско шосе. Идеален за инвестиция. Цената е без ДДС. Налична цялата документация по проекта.
Изключително добра локаци на входа и изхода от града и в същото време за доставки на 25 мин от центъра. С лице към главен път - бул. Ботевградско шосе и ул. Хан Богров.
Груб строеж. Акт 14. Опция за довършване от инвеститора
Квадратура. Цена.
Обади се сега и цитирай този код 613562







