✅ЕКСКЛУЗИВНО ПРЕДЛОЖЕНИЕ!
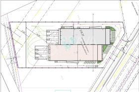
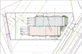
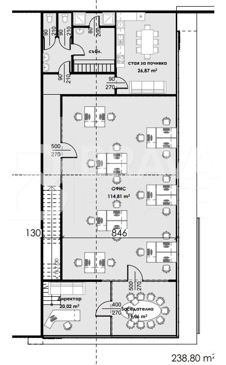
➡️БРАВА ЕСТЕЙТ ви представя многофункционална сграда, разположена в парцел с директен достъп от Околовръстния път на град Пловдив. Обектът е промишлено‐търговска база, включваща складово хале, шоурум зона, както и офисни помещения, разположени над шоурума. Минималната височина на тавана на халето е 7.5м.
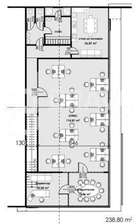
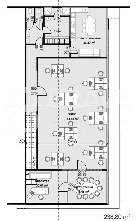
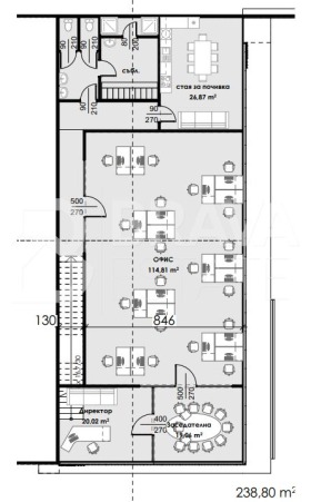
➡️РЗП на имота 3920 кв.м.
➡️Обектът е проектиран като съвременна логистично‐търговска сграда, подходяща за:
складова и дистрибуционна дейност,
търговско представителство,
изложбена/демонстрационна зона,
офисна администрация.
➡️Архитектурното решение е оптимизирано за висока функционалност, бърза логистика и удобство за клиенти и служители.
➡️Сградата има наличен паркинг за леки автомобили пред шоурумите, за тежкотоварния превоз е предвидена зона за паркинг, товарна и разтоварна дейност. Входовете и изходите са организирани така, че да позволяват еднопосочно движение на трафика. Обособени са 5 рампи, които осигуряват лесен достъп до всички части на помещението
➡️Локацията е изключително атрактивна, разположена директно на Околовръстния път на Пловдив, с отлична видимост, лесен достъп и бърза връзка към ключови направления АМ Тракия , Южната индустриална зона и основните входове към града. Зоната е развита и предпочитана за бизнес, логистика и търговия.
➡️Срок за завършване от 6 до 8 месеца
➡️Обявената цена е без ДДС
📞За повече информация ни се обадете директно!







