Агенция Теменуга Предлага за продажба модерен производствено-складов имот-фабрика, разположен в утвърден индустриален район до Околовръстно шосе, бул Европа, Северна тангента, Автомагистрала Европа, с развита инфраструктура, лесен достъп за тежкотоварен транспорт, ЖП транспорт и отлични комуникации.
БЕЗ КОМИСИОН ОТ КУПУВАЧА!
Локацията предлага бърз достъп до магистрали, основни пътни артерии и жп транспорт, което я прави стратегически удобна за различни видове производства и логистична дейност.
В близост до имота : Пътен възел Автомагистрала Европа-Ломско шосе Е-80, Околовръстно шосе-Западна дъга, ЖП гара Волуяк, бул Европа, Индустриален парк Божурище.
В района се изгражда Интермодален терминал Волуяк , част от Мултимодалната логистична платформа София-Запад, което ще доведе до много бързо развитие и концентрация на логистични и производствени бази и подобряване на транспортната инфраструктура.
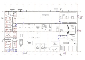
Основни характеристики на имота:
Общо РЗП: ~2920 м²
Парцел: ~5900 м²
Година на строителство: 2017 г.
Конструкция: метална рамкова с термопанели (100 мм) върху стоманобетонов фундамент
Височина на работните помещения: 4,00 5,90 м
Разпределение:
Производствена част (~2448 м²) с обособени зони за различни производствени процеси, товарни входове и индустриални врати с подход за камиони
Административна част (~504 м²) с модерни офиси, заседателна зала, помещения за персонала, столова
Технически параметри:
Електрозахранване: собствен трафопост (400 kW)
Водоснабдяване: връзка с градски водопровод + собствен водоизточник за промишлени нужди
Отводняване: пречиствателна станция и изгребна яма
Климатизация: термопомпена система за отопление и охлаждане
Настилки:
Производствени помещения шлайфан бетон усилен с метален чипс
Офисна част декоративен шлайфан бетон
Сигурност: видеонаблюдение, контрол на достъпа, пожароизвестителна система
Интернет и комуникации: изградена мрежова инфраструктура
Подходящо за:
✅ Чисти производства: мебели, метални изделия, машиностроене, електроника, автомобилни компоненти, рекламни материали , лесно може да се преустрои за производства свързани с фармация, козметика и хранително вкусови, както и свързани с отбранителната индустрия.
✅ Логистика и дистрибуция
✅ Сервизни и технологични дейности, високо технологични производства
Имотът предлага оптимални условия за развиване на производствена и складова дейност, съчетавайки съвременна сграда, функционално разпределение и отлична транспортна достъпност, съществуваща инфраструктура, собствен трафопост.



