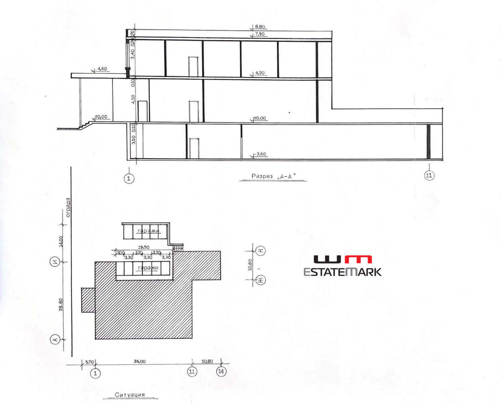
Административно-производствена сграда разпределена, както следва:
Партер 350 кв.м. - отворени пространства тип магазин със светла височина 3,20 до 3,50 метра, офис помещения, помещение за охрана, санитарни възли/виж схемата/.
Първи етаж 350 кв.м. - офис помещения и санитарни възли /виж схемата/.
Светъл сутерен 800 кв.м.с английски двор с втори отделен вход и светла височина около 3,20 метра, различни по големина помещения /виж схемата /.
7 паркоместа.
Сградата е масивна стоманобетонна конструкция в добро състояние.
Подходяща, както за чисто производство, представителство, така и за административни нужди.
За контакт: Мариян Тодоров 0876 394 766
Професионалист по недвижими имоти.
Разгледайте и други интересни предложения:
Складове и промишлени помещения
1.Ботевтрадско шосе - 500 кв.м. склад, Н=6 м., терен - 1400 кв.м., цена: 1,3 млн. евро
2.Ботевградско шосе - 900 кв.м. склад , Н=4,35 м., цена: 950 000 евро
3.Ботевтрадско шосе 3800 кв.м. склад, Н=8 м., терен - 4000 кв.м., цена: 2,95 млн. евро
4.Слатина 2 000 кв.м. склад, Н=5 м., терен - 5500 кв.м., цена: 5 млн. Евро/може да се реализира и жилищна сграда върху терена/
5.Дружба 1 2 700 кв.м. склад, Н=10 м., терен - 4200 кв.м., цена: 3,75 млн. евро
6.Горубляне 800 кв.м. склад, Н=6 м., терен - 5500 кв.м., цена: 2,5 млн. евро
7.Герман 1000 кв.м. склад, Н=4,5 м., терен - 2400 кв.м., цена: 1,6 млн. евро
8.Лозен 1 000 кв.м. склад, Н=5 м., терен - 5000 кв.м., цена: 1,5 млн. евро
9.Лозен 1 900 кв.м. склад, Н=5 м., терен - 2100 кв.м., цена: 2,8 млн. евро
10.Околовръстен път/Лозен/ 10 000 кв.м. склад, Н=8 м., терен - 5000 кв.м., цена: 7,5 млн. евро
11.Сточна гара/НПЗ Х.Димитър/- 2500 кв.м. складове,терен- 5000 кв.м., цена: 1,85 млн.евро
12.Сточна гара/НПЗ Х.Димитър/- 3000 кв.м. складове,терен- 5000 кв.м., цена: 4 млн. евро
13.Сточна гара/НПЗ Х.Димитър/- 3400 кв.м. складове,терен- 6000 кв.м., цена: 4,3 млн. евро
14.Сточна гара/НПЗ Х.Димитър/- 7400 кв.м. склад, Н=8 м.,терен-12500 кв.м.,цена:12 млн.евро
15.Военна рампа 1750 кв.м. склад, Н=10 м., терен - 2600 кв.м., цена: 1,6 млн. евро
16.Бул.Рожен 1000 кв.м. склад, Н=5 м., терен - 1200 кв.м., цена: 2,1 млн. евро
17.Бул.Ломско шосе 2040 кв.м. склад, Н=6 м., терен - 4600 кв.м., цена: 2,4 млн. евро
18.Бул.Ломско шосе 4080 кв.м. склад, Н=6 м., терен - 9200 кв.м., цена: 4,8 млн. Евро
19.Вакарел 1000 кв.м. склад, Н=6 м., терен - 2400 кв.м., цена: 780 000 евро
Терени за строителство
1.Ботевтрадско шосе УПИ 900 кв.м., Устройствена зона - СМФ, цена: 460 000 евро
2.Ботевтрадско шосе УПИ 5300 кв.м., Устройствена зона СМФ2, цена: 960 000 евро
3.Ботевтрадско шосе УПИ 7000 кв.м., Устройствена зона СМФ1, цена: 3,3 млн. евро
4.бул.проф. Цветан Лазаров/Дружба 2, УПИ 4500 кв.м., Устройствена зона СМФ, цена: 1,5 млн. евро
5.Цариградско шосе/Горубляне/ УПИ 12000 кв.м.,Устройствена зона - ПМС, цена: 4,8 млн. евро
6.Горубляне УПИ 15 000 кв.м., ток 1 МгВт, лице на основна пътна артерия, Устройствена зона - ПМС, цена: 5,5 млн. евро
7.Слатина УПИ 5500 кв.м., Устройствена зона ПМС/може да се реализира и жилищна сграда върху терена/, цена: 5 млн. евро
8.Слатина 7000 кв.м. Устройствена зона ПМС/може да се реализира и жилищна сграда върху терена/, цена: 1 млн. евро
9.Сточна гара/НПЗ Х.Димитър/ - УПИ 5000 кв.м., Устройствена зона СМФ цена: 1,85 млн. евро
10.Сточна гара/НПЗ Х.Димитър/ - УПИ 5000 кв.м., Устройствена зона СМФ цена: 4 млн. евро
11.Сточна гара/НПЗ Х.Димитър/ - УПИ 12500 кв.м., Устройствена зона СМФ цена: 12 млн. евро
12.Околовръстен път:
-УПИ 6 дка /до Порше София изток/, Устройствена зона СМФ2, цена: 3,2 млн. евро
-УПИ 4 дка /Горубляне/, Устройствена зона СМФ 1, цена: 2 млн. Евро
-УПИ 2,2 дка /Горубляне/, Устройствена зона СМФ 1, цена: 1,1 млн. евро
-УПИ 2,3 дка /Симеоновско шосе/, Устройствена зона Оз1, цена: 2,3 млн. евро
-УПИ 2 дка /Черни връх/, Устройствена зона Оз2, цена: 1,9 млн. евро
-УПИ 2,5 дка /Черни връх/, Устройствена зона Оз1, цена: 2,5 млн. евро
-УПИ 2,2 дка /Самоковско шосе/, Устройствена зона СМФ2, цена: 980 000 евро
-УПИ 4 дка /Чепинци/, Устройствена зона ПМС, цена: 450 000 евро
За контакт:
Мариян Тодоров 0876 394 766
Професионалист по недвижими имоти.







