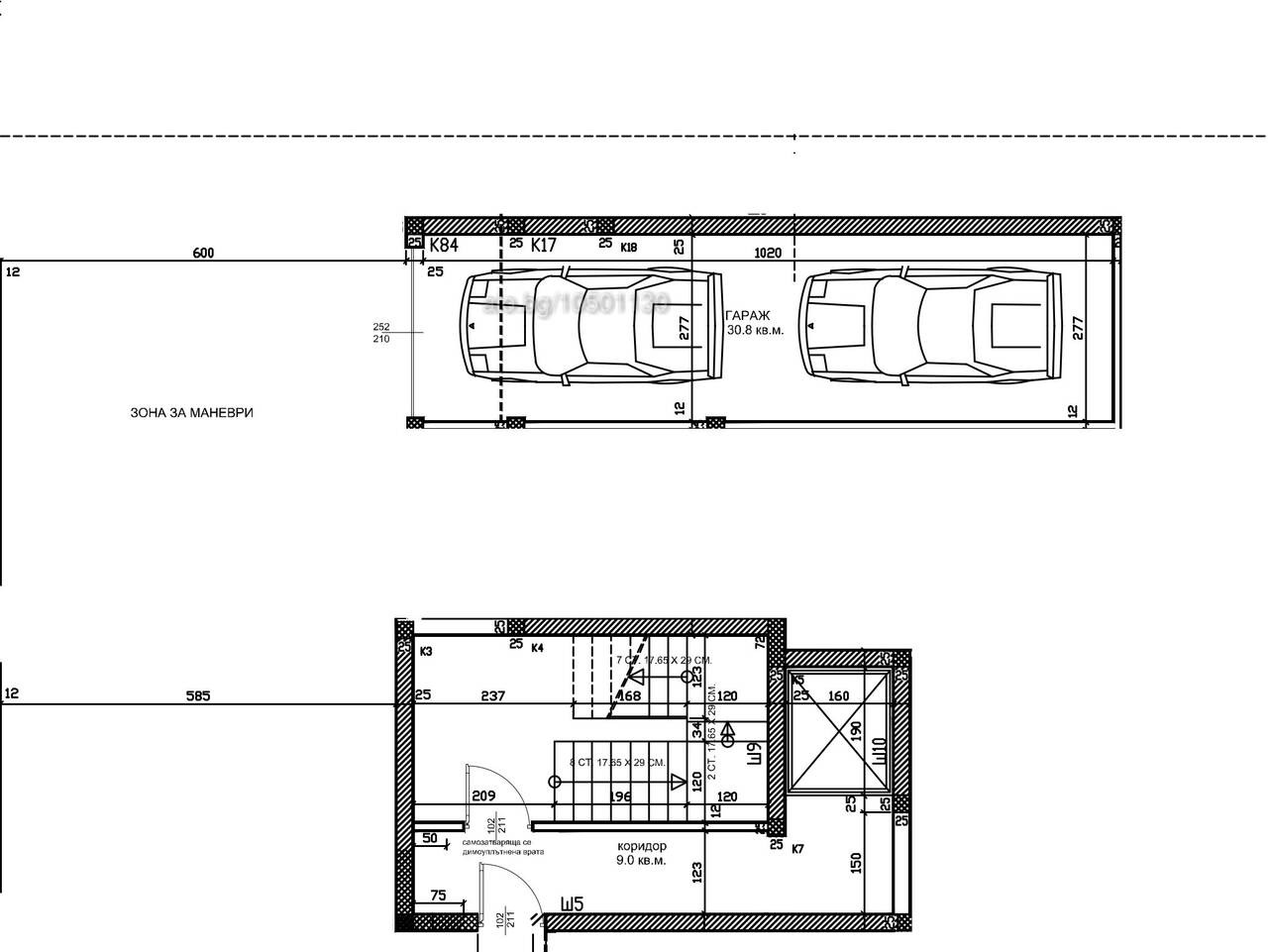
Голям двоен гараж в нова сграда до бул. Ал. Стамболийски и ул. Асен Христофоров.
Реален, голям двоен гараж в който нормално домуват 2 автомобила, мотор и щендер за инструменти, какъвто рядко се среща в последните години. Гаражът е непосредствено до входа с висока ролерка и удобно за маневри пространство. Разполага с осветление контакти, отделен електромер.
Намира се в сграда на 2-3 години, подземен гараж с удобен подстъп, широки, двойни алеи за маневри, контролиран достъп с автоматични врати, система за осветление и вентилация.







