Без комисион от купувача.
For ENGLISH please call the number below!
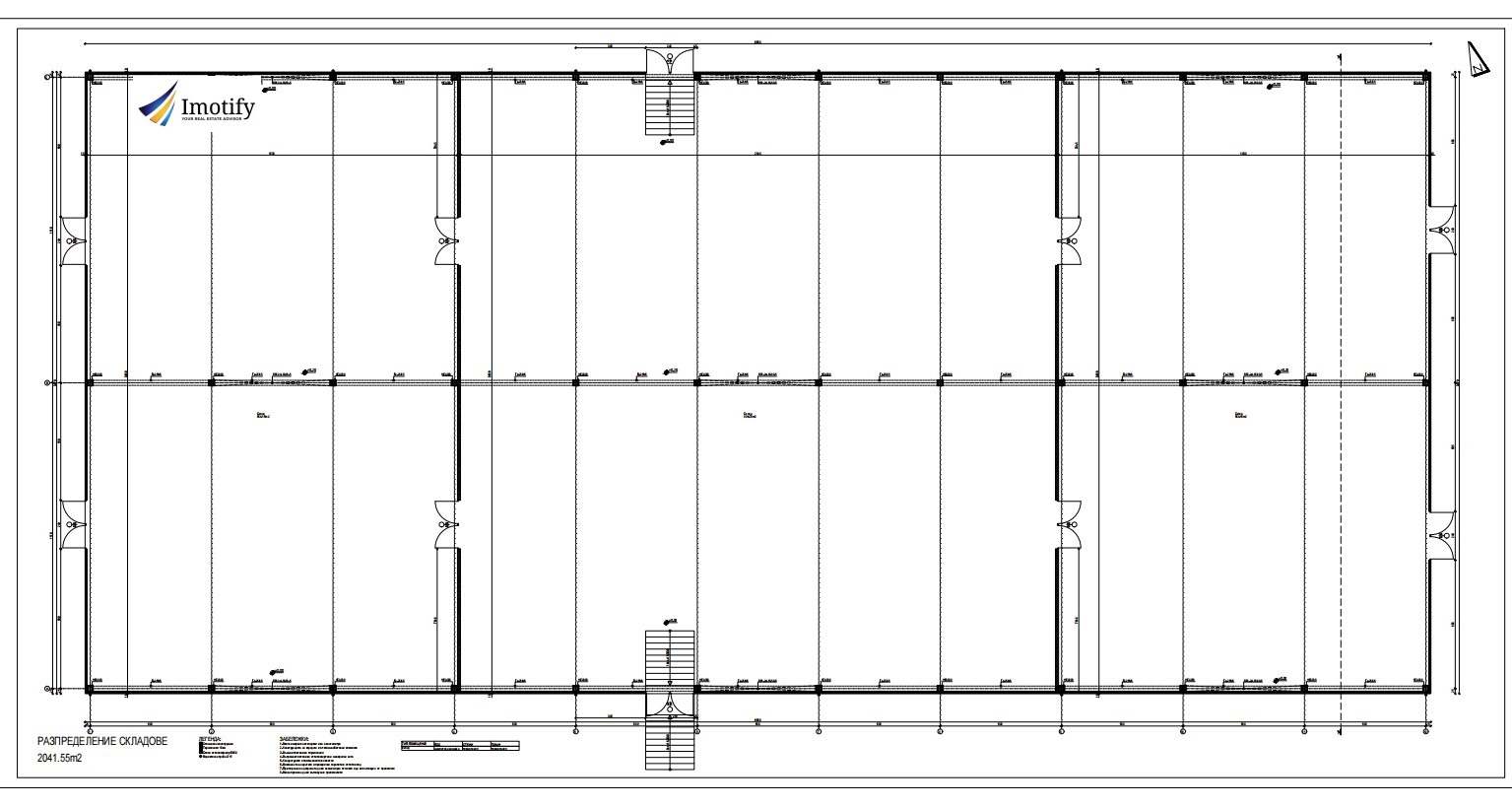
Имаме удоволствието да ви представим производствено-складова база за продажба.
✅ Локация: с. Волуяк, с директен подход от бул.Ломско шосе
✅ Площ: 2041,55 м² застроена площ (ЗП)
✅ Парцел: около 4400 м²
Представяме Ви производствено-складова база, разположена на стратегическо място с удобен достъп до основни транспортни артерии:
🔹 На 3 км от Околовръстен път и София
🔹 До Северна скоростна тангента и международен път E81 (София Видин)
🔹 На 5 км от международен път София Калотина и автомагистрала Люлин Струма
🔹 В близост до ЖП гара Волуяк (3 км)
Характеристики на базата:
📏 Размери: 66,50 м × 30,70 м
📏 Височина: от 5,54 м (най-ниска точка) до 7,40 м (най-висока точка)
🏗 Конструкция: стоманобетонни колони и греди, термопанели (10 см), шлайфан бетон, армирана бетонна настилка.
Халетата са в процес на изграждане и реконструкция, като могат да бъдат завършени според изискванията на купувача.
Комуникации и инфраструктура:
🔹 ТИР достъп
⚡ Ток: Трафопост 150 kW с възможност за разширение до 2 × 500 kW
⚡ Високоволтов далекопровод (110 kV) на 100 м с възможност за изграждане на подстанция
💧 Вода: Собствен водоизточник
💧 Предвиден е канал и пречиствателна станция
🚛 Пътна инфраструктура: Асфалтов път с трайна настилка
Подходящо за:
🏭 Чисто производство
🏪 Складова база / логистичен център
🛒 Търговска дейност / шоурум
🔧 ТИР / АВТО сервиз
💰 Цена: Посочената цена е без включен ДДС.
За повече информация и огледи: Тодор Гурков +359888099572







