Translations in other languages:
All real estate ads published on imot.bg have been translated into English and published on the partner site
Получихте нова обява по филтър





Промяна на цена на наблюдавана обява


стара цена
нова цена
imot.bg – обяви за продажби и наеми на имоти
Сайт за имоти №1
Translations in other languages:
All real estate ads published on imot.bg have been translated into English and published on the partner site
ДОБАВИ ОБЯВА Редакция на обява
Начало Добави обява Търсене Агенции Новини Кредити Вход / Регистрация
Продава ЗАВЕДЕНИЕ
град София, Илинден
ул. Цар Симеон
1 780 000 €
3 481 377.40 лв.

(2 469 €, 4 828.94 лв./m2)
Не се начислява ДДС
История на цената
Публикувана в 13:01 на 21 април, 2026 год.
Обявата е посетена 192 пъти.
Площ:
721 m2
Етаж:
Партер от 5
Газ:
НЕ
ТEЦ:
НЕ
Строителство:
Тухла, Въведен в експлоатация 2020 г.

Описание на имота:


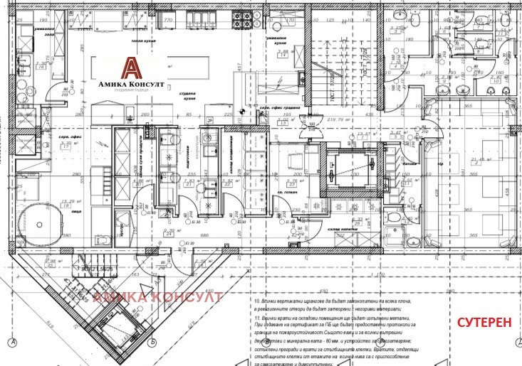
Предлагаме на Вашето внимание нашата най добра оферта за напълно оборудвано, и климатизирано работещо заведение с всички необходими разрешителни- категоризация находящо се в самостоятелна офис сграда!!! Заведението е разположено на три нива, като има следното разпределение: Сутерен-напълно оборудвана кухня със всичко необходимо за работа, складови помещения, офис, 3бр.санитарен възел, Vip зала за частни мероприятия разполагаща с 20 бр. седящи места, стълбище, асасньор, авариен изход, техническо помещение. 1-Ви етаж на кота 0,00 метра-партер: Основна зала със зимна градина разполагаща с около 100 бр. седящи места, санитарен възел, авариен изход, стълбище, асансьор, вход за зареждане, лятна градина разполагаща с около 110 бр. седящи места: 2-ри етаж: Основна зала с около 50бр.седящи места, авариен изход, стълбище, асансьор, Детски клуб, 4бр. санитарни помещения, балкон, тоалетна за инвалиди. Заведението материализира визията за модерно градско луксозно изпълнение, функционалност и удобство, спокойствие и сигурност, зелена околна среда и комуникативно местоположение с 24 часово видеонаблюдение !!! Огледи с предварителна уговорка и подписване на протокол за оглед !!!
Особености
Тухла
Асансьор
Обзаведен
Контрол на достъпа
Саниран
За контакт:
0894689736
Брокер:
Ивайло Христов
+359894689736
Офис: София,кв.Лозенец ул.,,Златен рог 22 ет.5 офис 13А
Още оферти от брокера: Продава | Дава под наем | Купува | Наема
Агенция:
АМИКА КОНСУЛТ
0895662129
АМИКА КОНСУЛТ logo
Медал за прослужено време
В imot.bg от 2013 г.
a_consult.imot.bg
Адрес:
област София, гр. София, софия,Ул.Златен Рог 22, етаж 5, офис 13 А ЕИК:202239645
ИЗПРАТИ ЗАПИТВАНЕ
ИЗПРАТИ ЗАПИТВАНЕТО

Продава ЗАВЕДЕНИЕ
град София, Илинден
ул. Цар Симеон
Обява: 1m177676566699703

1 780 000 €
3 481 377.40 лв.
История на цената
(2 469 €, 4 828.94 лв./m2)

Не се начислява ДДС
ЗАПАЗИ ОБЯВАТА

Местоположение: град София, Илинден, ул. Цар Симеон

Виж още имоти от София или още Заведения в София
Допълнителни данни за имотите в района и сравнение с други райони

Покажи

Период

и 4 месеца

* Средните цени са определени чрез медианна стойност
Още обяви в imot.bg
Обяви за имоти Продажби град София Илинден Заведения
Въпроси и предложения към imot.bg
КОНТАКТИ | SMS КОДОВЕ | ПОМОЩ | ОБЩИ УСЛОВИЯ | РЕКЛАМА | ЗАЩИТА НА ЛИЧНИТЕ ДАННИ | КАРТА НА САЙТА |
Резон Медия | Автомобили | Работа | Новини | Обяви 2002-2026 ® Copyright imot.bg
© imot.bg ползва и препоръчва хостинг услугите на Bulinfo.net
Следвайте ни в: