Предлагаме за продажба изключителен търговски имот с представителна локация топ център, пешеходната зона на ул. Богориди , само на крачки от Морската градина.
Престижна локация | Пространство с характер | Потенциал за стилен бизнес
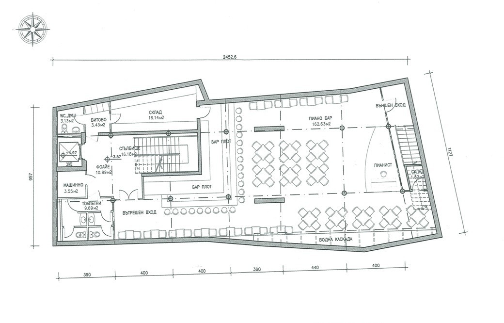
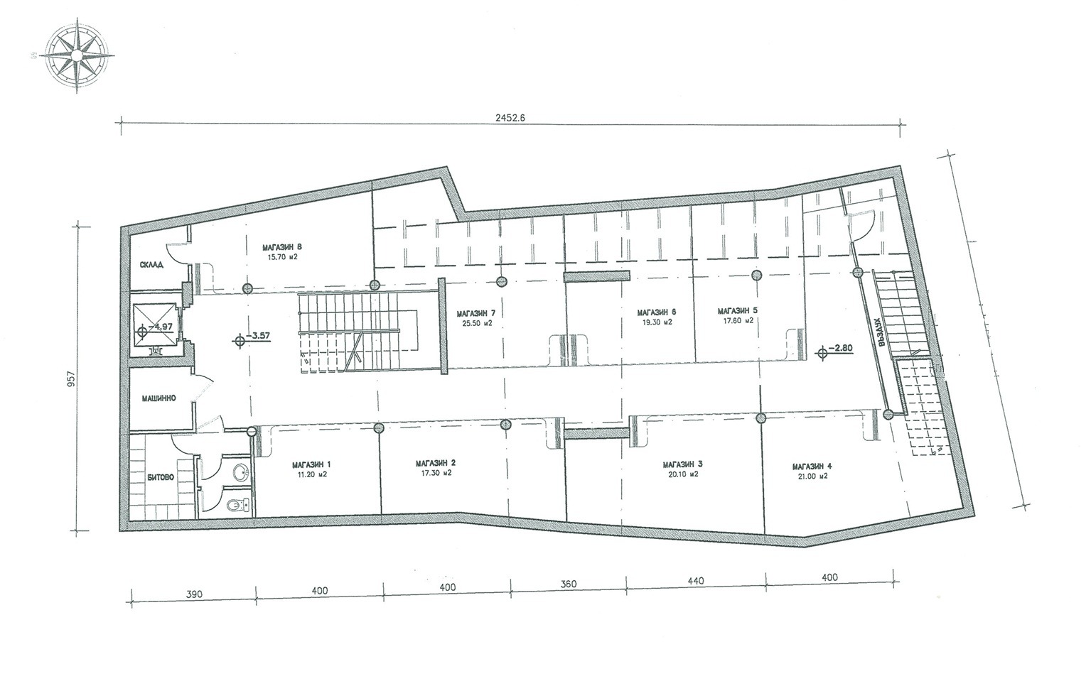
Разпределение:
Обща площ: 490 кв.м
Помещение партерно ниво/119.33 кв.м / с директен вход от улицата, с голяма витрина и възможност за шоурум, кафе или магазин
Открита тераса/вътрешен двор /68.93 кв.м / изключително рядко предимство за центъра на Бургас подходяща за външни маси и/или артистично озеленяване
Сутерен / 301.67 кв.м / - функционирал като пиано бар с артистичен дух и сцена
Предназначение: за обществено хранене
Подходящ за различни бизнес дейности, включително следните:
Пиано бар, джаз клуб, музикален салон
Галерия, арт пространство
Кафене с градина, коктейл бар
Казино
Бутиков магазин или шоурум
Комбинирано пространство (работилница + търговия/събития+ отдаване под наем за частни партита)
За ваше улеснение са прикачени примерни проекти и разпределения на пространствата.
Предимства:
Локация с престиж и голям пешеходен трафик
Имот с характер и собствена атмосфера рядкост за града. Възможност за брандиране и дългосрочно развитие.
💬 Ако търсите място с душа за вашия бизнес това предложение не е просто имот, това е сцена за идеи. Партерното ниво се отдава под наем в момента - възможност да стартирате с добра доходност.
Цена: 718 540 EUR
Сутерен 685 /м2
Двор (партер) 1800 /м2
Магазин (партер) 3250 /м2
Обадете се, за да разберете повече за този уникален имот и да организираме оглед:
Цветомира Ненова
0877 202 056
[email protected]
moderatoimoti.com
✷ От нас ще получите пълно съдействие по време на целия процес по покупко-продажбата. При планиране на покупка с кредит, ще получите сътрудничество и гарантирано добри условия на финансиране.







