Предлагаме за продажба атрактивен търговски имот със статът на ресторант С ТОПЛА ТОЧКА, с отлична локация в сърцето на града, на ул. Цар Симеон 153, подходящ за ресторант, кафене, сладкарница, бар, заведение за бързо хранене, магазин или друг вид търговска дейност.
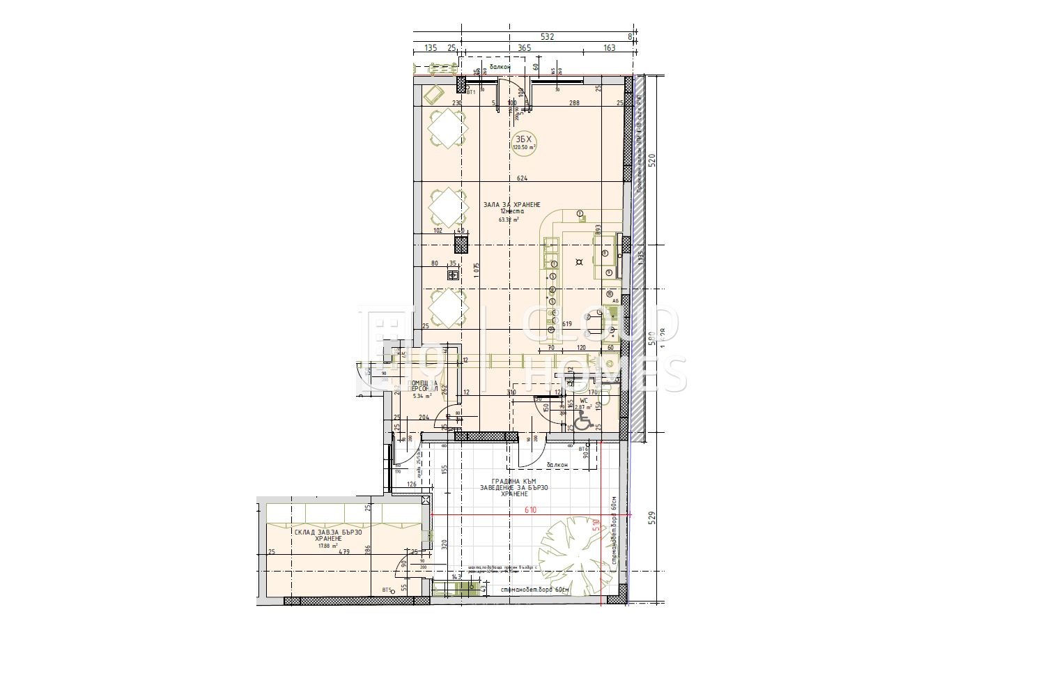
Разпределение:
- Просторна зала за хранене: 68,66 кв.м
- Градина към заведението: 32,26 кв.м, идеална за открита зона за клиенти
- Допълнителна зала: подходяща за пушачи, склад или допълнително пространство за клиенти
- Единична тоалетна: 2,87 кв.м, напълно завършена с теракота, фаянс, мивка и тоалетен моноблок
- Обща площ: 145 кв.м
Входове:
- Централен вход с 3,60-метрова витрина към ул. Цар Симеон
- Вход от залата за хранене към общите части на жилищния блок
- Допълнителен вход от залата за пушачи/склад към общите части на сградата
Капацитет: Над 40 души на закрито и над 20 души в градината, с възможност за увеличаване в зависимост от разпределението на мебелите
Технически характеристики:
- Завършен с висококачествен гранитогрес, окачен таван и сплит система за климатизация
- Оборудван с отдушник и абсорбатор
- Предвидено място за бар с изведени мръсен канал и вода (виж архитектурния чертеж, приложен към обявата)
- Отопление: изцяло на ток чрез климатици
- Отговаря на всички норми за противопожарна безопасност
Условия за наем:
- Цената е с включено ДДС.
Допълнителни предимства:
- Имотът е с отлична видимост и достъпност, благодарение на централното си местоположение и голямата витрина към оживената ул. Цар Симеон .
- Гъвкавост за различни видове бизнес: ресторант, кафене, сладкарница, бар, пицария, магазин за хранителни стоки, шоурум или офис пространство.
- Градината предоставя възможност за уютна външна зона, подходяща за топлите месеци.
- Архитектурният чертеж, приложен към обявата, улеснява планирането на интериора и разположението на обзавеждането.
За огледи и повече информация се свържете с водещия брокер по обявата: Мартин Ников - +359 877 53 0403
Това е отлична възможност за стартиране или разширяване на вашия бизнес в сърцето на града!







