Агенция за недвижими имоти ХОУМ ФОР Ю има голямото удоволствие да ви представи за продажба заведение с детски кът в гр. Благоевград ж.к. Еленово.
Сградата се намира на много комуникативно място в близост до училище, детска градина, спирки, магазини и заведения и се състои от: модерен безшумен асансьор, сутерен с гаражи и мазета, партерен етаж с търговски помещения и заведение с детски кът и четири жилищни етажа.
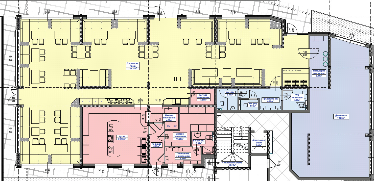
Вашето ново заведение се намира на КОТА + 0,00 на партерен етаж със застроена площ от 435,80 кв.м. + 72,98 кв.м. общи части, което се равнява на 508,78 кв.м. обща площ и разполага с 3 входа за клиенти и товарен вход за кухнята.
Със следното вътрешно разпределение на заведението и неговата полезна (светла) площ:
- търговска площ 228,25 кв.м.
- кухня с площ 33,05 кв.м.
- миално помещение с площ 4,80 кв.м.
- битово помещение с площ 10,85 кв.м.
- коридор с площ 5,25 кв.м.
- помещение за персонал с площ 5,40 кв.м.
- баня с WC с площ 3,65 кв.м.
- битово помещение с площ 3,50 кв.м.
- предверие WC с площ 3,95 кв.м.
- WC за инвалиди с площ 4,65 кв.м.
- WC (Ж) с площ 1,65 кв.м.
- WC (М) с площ 3,95 кв.м.
- предверие детски кът с площ 8,80 кв.м.
- детски кът с площ 73,25 кв.м.
Заведението се продава във вида в който го виждате на снимките:
- ПВЦ дограма PROFILINK 6 камерна 4 сезона двоен стъклопакет
- ел. до точка
- ВиК до тапа
За удобството на клиентите в заведението, ви предлагаме да закупите и външни парко места за да има къде да паркират автомобилите си.
ОБЯВЕНАТА ЦЕНА Е С ВКЛЮЧЕНО ДДС!!!
ЕТАП НА СТРОИТЕЛСТВОТО: АКТ 15
АКТ 14 (това е документът за приемане на конструкцията на сградата, който се издава, когато сградата достигне етап груб строеж)
АКТ 15 (това е документът, с който се констатира, че сградата е напълно завършена)
АКТ 16 - се очаква януари на 2025г. (това е документа, с който сградата се въвежда в експлоатация или по просто казано годна за живеене )
Заведението очаква своите нови собственици, които ще го стопанисват и превърнат в едно привлекателно място за отдих, кулинарни изкушения и незабравими преживявания.
За да получите повече информация за предлаганата от нас оферта може да ни се обадете на посочения телефон за връзка!
Екипът от професионалисти на ХОУМ ФОР Ю ще Ви помогне да сбъднете мечтите си и да ги превърне в реалност, като ви съдейства НАПЪЛНО БЕЗПЛАТНО при кандидатстването за жилищен кредит с ПРЕФЕРЕНЦИАЛНИ УСЛОВИЯ от най-големия кредитен консултант в България КРЕДИТ ЦЕНТЪР!
Ако предлаганият бизнес имот ви е харесал и представлява интерес за вас, не се колебайте да се свържете с наш брокер, за да резервирате час за оглед в удобно за вас време!
Заповядайте в нашият офис на бул. Кирил и Методий 29 Б за безплатна консултация с нашите професионалисти, които ще ви обърнат специално внимание, като ви запознаят с пазара на недвижими имоти и ви помогнат с избора на ново жилище според вашите изисквания!
Новият Ви ДОМ е точно тук!
Защото с нас мечтите стават реалност!
РЕФЕРЕНТЕН 6203







