Комплексът е пред етап АКТ 15 и се очаква завършване с АКТ 16 до м. април 2026 г.
NIDO RESIDENCE е проект с ексклузивни права за продажна от KMV PROPERTY MANAGEMENT и покупката на имот в комплекса е БЕЗ КОМИСИОНА от купувача.
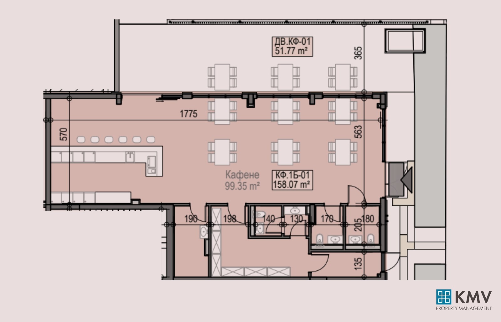
Имотът, който представяме за продажба се намира на партерен етаж на Сграда 1 и достъп от ул. Костенец. Застроената площ 158,07 кв.м., а прилежащия към заведението двор е с площ 51,77 кв.м.
Възможно е закупуване на паркоместа на подземно ниво /-1/, което ще обслужва изцяло търговските обекти.
За името на комплекса:
В превод от италиански NIDO означава гнездо и е символ на домашното огнище, семейството, щастието и сигурността. Мястото, което избираш да живееш, да създадеш семейство и да отгледаш децата си.
За локацията:
Транспортната достъпност на комплекса е обезпечена по отлично изградената инфраструктура на улиците Житница , Цар Борис III и Никола Мушанов , както и от непосредствената близост до Метростанция Красно село .
При покупка на имот, задължително се сключва Договор за поддръжка и управление на жилищен комплекс NIDO RESIDENCE като цените на услугите, които ще бъдат изпълнявани са фиксирани за срок от две години, както следва:
Такса за търговски площ: изчислява се върху РЗП на имота (застроена площ плюс общи части) по 1,20 лв./кв.м. с вкл. ддс. месечно.
Такса за паркомясто/гараж: за единично подземно паркомясто и единичен гараж в размер на 20 лв. с вкл. ДДС/месечно; за двойно паркомясто и гараж за два автомобила в размер на 40 лв. с вкл. ДДС/месечно.
За повече информация по отношение на включените услуги в договора за управление и поддръжка се свържете с отговорния консултант за обекта.
След направен избор на конкретен имот за покупка, се сключва договор за депозит гаранция, с който резервираме избрания от Вас имот за период от 10 дни до сключване на предварителен договор.
Предлагаме разсрочена схема на плащане, обвързана с достигнат етап на строителство:
Вариант I
50% при подписване на пред. договор
30% до 31.10.2025 г.
10% при АКТ 15
10% при АКТ 16
Вариант II
30% при пoдписване на Предварителен договор
70% при АКТ 16
При посочената схема се прилага оскъпяване в размер на 5% от обявената продажна цена.
Вариант III /при финансиране с ипотечен кредит/
20% при подписване на Предварителен договор /лични средства/
60% при завършен груб строеж и издадено Удостоверение по чл. 181 /след ипотекиране на имота/
10% при Акт 15 / от ипотечен кредит/
10% при Акт 16/ от ипотечен кредит/
За допълнителна информация и въпроси се свържете с наш консултант на телефон: 0883 200 300
Виж всички обяви в kmv.bazar.bg или тук



