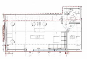
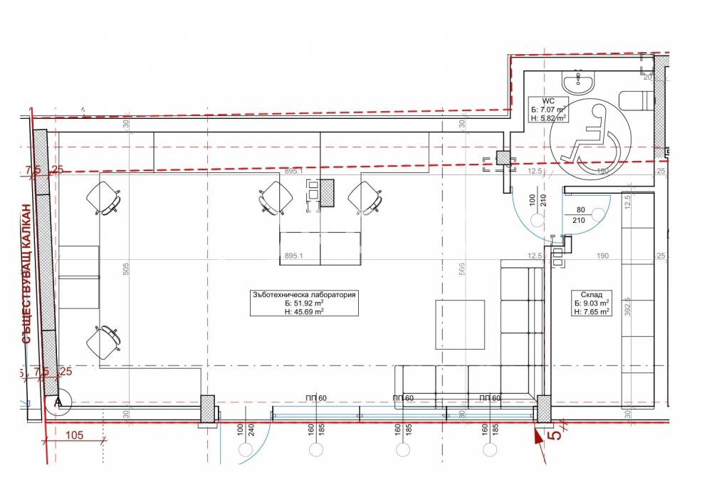
Помещение със статут на зъботехническа лаборатория в нова сграда с Акт 16 от 2024, застроена площ от 80 кв.м., разположено на партерен етаж със самостоятелен вход, осигуряващ удобен достъп за персонал и клиенти.
Имотът е на шпакловка и замазка и е функционално разпределен, като включва: основно помещение, предназначено за зъботехническа дейност, складово помещение за съхранение на инструменти и консумативи, както и санитарен възел. Пространството е подходящо за различни видове зъботехнически услуги и разполага с добра естествена светлина и възможност за гъвкаво вътрешно преустройство според нуждите на бизнеса.
Намира се в квартал 'Хиподрума', в близост до 'Медицинска академия' и метростанция 'Красно село'.
Сградата е нова, тухлена, с Акт 16 от 2024
Имотът се намира в комуникативен район с лесен достъп и добра видимост, което го прави отлично предложение както за зъботехническа дейност, така и за друг вид медицинска или лабораторна практика. Подходящ е както за собствено ползване, така и за инвестиция с възможност за отдаване под наем.
Обади се сега и цитирай този код 493387







