ОТЛИЧНА ЛОКАЦИЯ ! ! ! ЦЕНТЪР ! ! ! ПОСТОЯНЕН ЧОВЕКОПОТОК! ! !
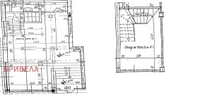
Предлагаме на вашето внимание функционален търговски обект (магазин), със следното функционално разпределение: Просторно търговско помещение на първи етаж; Санитарен възел; Складово помещение на ниво -1. Имотът е в нова сграда, с отлична видимост и лесен достъп, което го прави подходящ както за инвестиция, така и за развитие на собствен бизнес. Магазинът е отдаден под наем и към момента функционира, което го прави идеален инвестиционен имот с гарантиран доход. Подходящ за различни търговски дейности магазин, офис, шоурум, салон, и др. За ваше улеснение прилагаме схема на разпределение на имота.







