Престиж Билдинг - https://prestigebuilding.bg/ Ви предлага просторен и много светъл търговски обект - магазин, разположен на партерен етаж в Сграда А на нов комплекс с Акт 16 до НСА - модерен проект от доказан инвеститор, в един от най-престижните и бързо развиващи се квартали на София - Малинова долина.
Идеалното място за Вашия бизнес в модерен и перспективен нов жилищен комплекс!
Цена: 473 000 с ДДС
Цена: 394 166 без ДДС
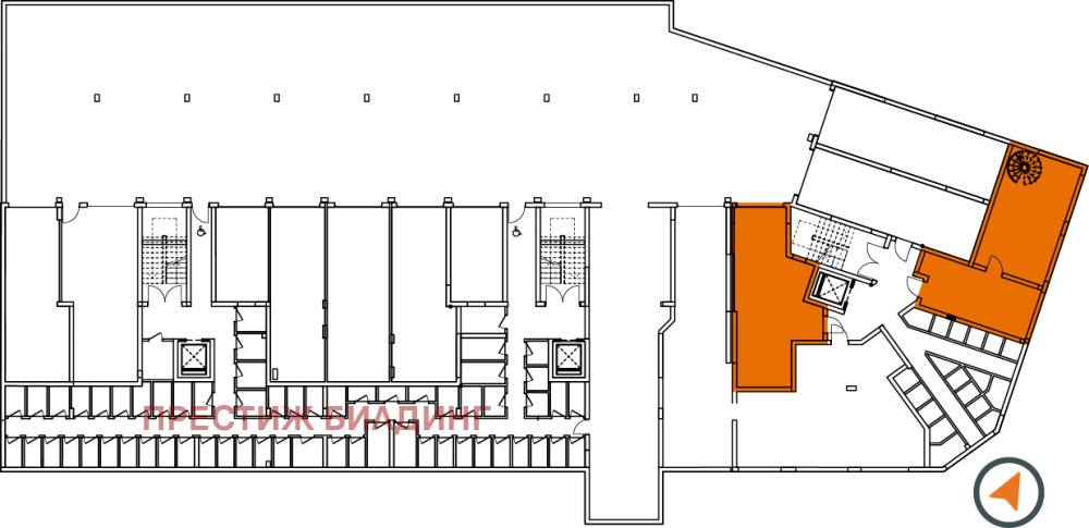
Статут: Търговски обект, магазин с директен достъп от улицата
Площ: 310 м²
Магазин Партер: 149.85 m²
Магазин Сутерен: 57.21 m²
Двор - 23,03 m²
Двоен гараж и склад А.Г.-01.16+А.Г.-01.17 - 79.84 m²
Цена под наем: 2 200 без ДДС
Отопление - Газ и ток
Енергиен сертификат - А+
Помещението е просторно и светло с лице към улица и гарантира постоянен човекопоток. В районът строителството е ново и се отличава с живущи млади семейства и млади хора поради близостта му със Студентски град.
Обектът е разположен на партер в пететажна жилищна сграда, която е заобиколена от нови жилищни сгради, зеленина и магазинчета, което дава потенциал и възможност за развиване на бизнес в района.
Локация с потенциал
На метри от НСА и Симеоновско шосе
Бърз достъп до Околовръстен път, АМ Тракия и Струма
В близост до Бизнес парк София , Ring Mall , IKEA, супермаркети и нова детска градина (800 м от обекта)
За комлекса
Две елегантни сгради с модерна архитектура и висококачествено строителство
Вентилируеми фасади, топло- и хидроизолации, тухли Винербергер , 5-камерна дограма
Просторни общи части и инфраструктура, подходяща за търговски обекти с висока посещаемост
Предвидено газоснабдяване и възможност за монтаж на климатични системи
Предимства на търговският обект
Отлична видимост от улицата и директен достъп
Подходящ за утвърден или нов бизнес, търсещ престижна локация
Подходящ за салон за красота, козметичен или медицински център, бутик, студио и др.
Възможност за гъвкаво вътрешно разпределение
Част от разрастващ се жилищен комплекс с бъдещи обитатели и постоянен поток от клиенти
Отлична инвестиция за бизнес с възвръщаемост в бъдеще.



