Референтен номер: VAR-125967
Представяме атрактивно търговско помещение за Вашия успешен бизнес, за продажба на ключова локация във Варна.
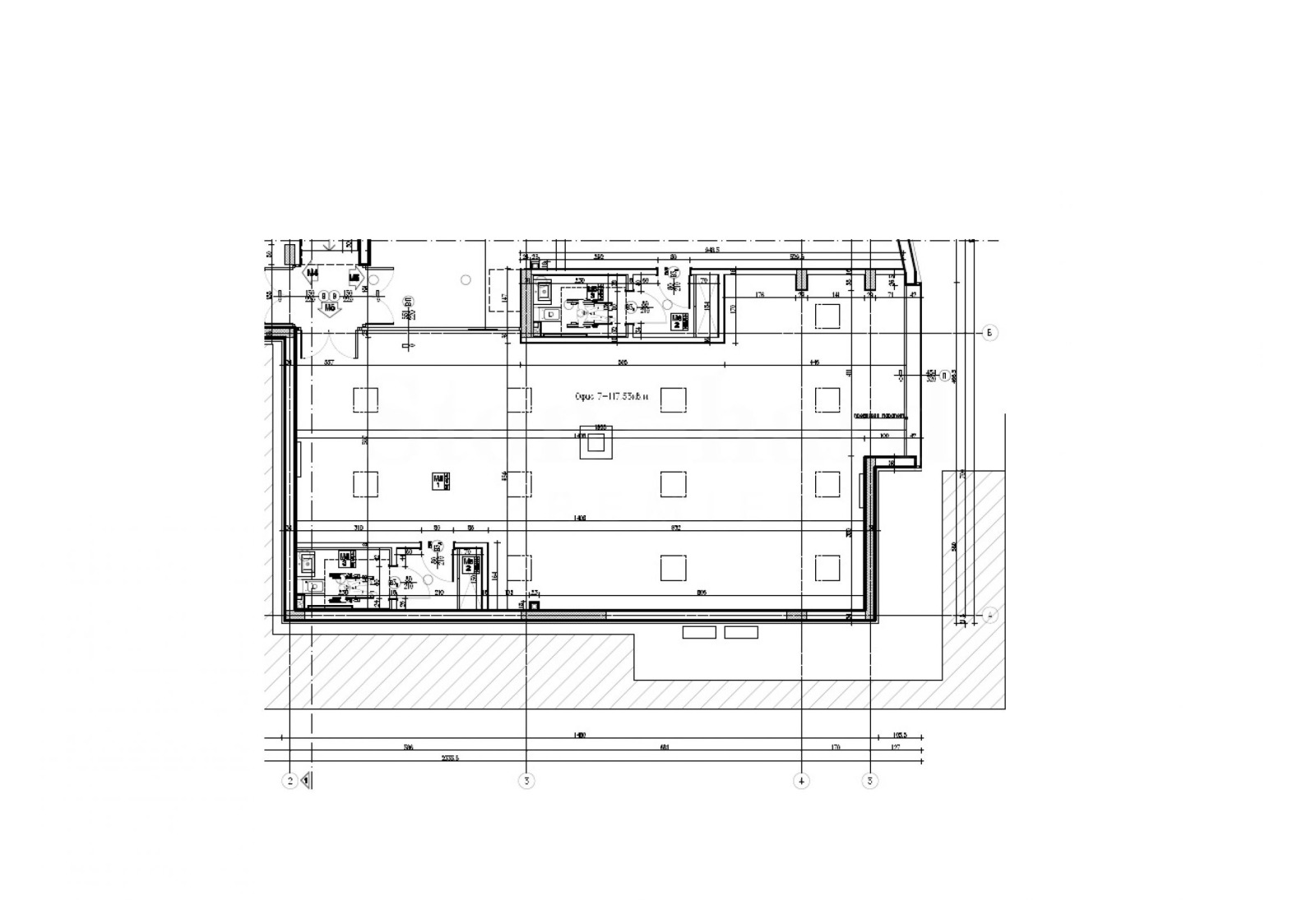
Имотът е част от един перспективен инвестиционен проект - търговски комплекс, разположен в сърцето на град Варна, предлагащ идеална възможност за закупуване на различни по големина търговски площи. Общата търговска площ е 999.35 кв.м.
В процес на строителство, планирано завършване в края на 2026 г.
Търговският комплекс заема стратегическо място на една от главните пътни артерии, свързващи центъра на град Варна и неговите околности, гарантирайки постоянен човекопоток и превозни средства. Помещенията на партерен етаж имат директен вход към локалното платно, а тези на първи етаж, са достъпни чрез удобни стълбища и асансьор, което гарантира високо ниво на комфорт и достъпност.
Характеристики на имота:
Магазин/офис на втори етаж, с големи витрини, с видимост на главната улица.
Разпределение: Open space помещение със собствен санитарен възел и складово пространство. В рамките на търговския комплекс можете да избирате между различни помещения, всяко от които е оборудвано със собствен санитарен възел и складово пространство, осигуряващи гъвкавост и комфорт за Вашия бизнес.
Защо да изберете този имот:
Подходящ за различен вид дейности - от магазин, офис или аптека, клиника за естетични процедури до салон за красота;
Локално за автомобилен и пешеходен достъп от булеварда, постоянен човекопоток;
7 търговски помещения, със самостоятелен вход на всеки обект;
Пешеходна алея и паркоместа за посетители.
Очакваме Вашето запитване
Ако желаете да организирате оглед на имот, който Ви интересува, или да посетите някой от нашите офиси, моля свържете се с нас. За да уговорите ден и час за среща или ...
Цената на имота е 334 750 евро / 654 714.09 лв. без ДДС или 401 700 евро / 785 656.91 лв. с ДДС. Данъчен кредит може да се ползва при определени условия.
За повече информация свържете се с нас и цитирайте референтния номер на имота. Моля, кажете, че сте видeли обявата в този сайт.
Референтен номер: VAR-125967
Тел: +359 889 007 010
Моб: +359 877 777 888 (WhatsApp, Viber, SMS)
Отговорен брокер:Стоунхард ПРЕМИЪР







