LUXIMMO FINEST ESTATES: www.luximmo.bg
Представяме ексклузивен търговски обект в новия Synerga Premium Complex модерен проект в самото сърце на кв. 'Младост', разположен само на крачки от метростанция Александър Малинов и в непосредствена близост до парка. Комплексът предлага рядко срещано съчетание между динамиката на градската среда и спокойствието на зелени пространства, оформяйки хармонична и сигурна среда за живот и бизнес.
Ексклузивни продажби. Без комисиона!
В процес на строителство. Планиран Акт 16 в края на 2027 г.
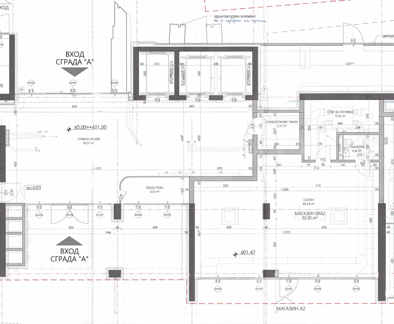
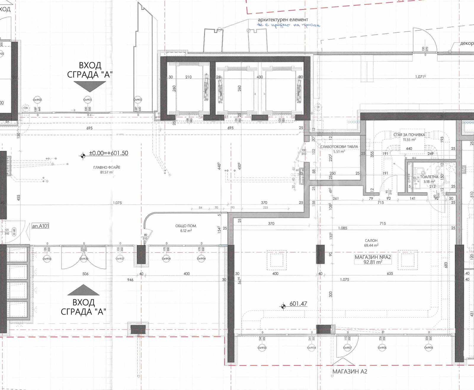
Магазин А2 е разположен на партерно ниво на комплекса и разполага с:
Обща площ: 102.07 кв.м;
Чиста площ: 92.81 кв.м;
Разпределение: просторна търговска зала, санитарен възел и сервизно помещение/стая за отдих всичко на едно ниво;
Посочената цена е без ДДС;
Възможност за закупуване на гараж;
Състояние за продажба - по БДС.
Обектът е подходящ както за бизнес с постоянни клиенти, така и за обслужване на външен поток от посетители. Мястото е отличителна комбинация от транспортна достъпност, висока видимост и спокойна среда фактори, които гарантират устойчив интерес към търговския обект.
В район с отлично развита инфраструктура, непосредствено до:
метростанция Александър Малинов ;
търговски обекти и офис сгради;
парк с озеленени алеи, места за отдих и семейни разходки;
жилищни зони с висок потенциал и постоянно нарастващо население.
Благодарение на мащаба на комплекса, пешеходния поток и близостта до метрото, магазинът е подходящ за:
минимаркет/био магазин;
аптека или дрогерия;
кафе пекарна, сладкарница, delicatessen;
beauty услуги салон, студио, фризьорски салон;
медицински, стоматологичен, терапевтичен кабинет;
детски център, учебен център, езикови курсове;
консултантски офис, ...
Цената на имота е 459 315 евро / 898 342.06 лв. без ДДС или 551 178 евро / 1 078 010.47 лв. с ДДС. Данъчен кредит може да се ползва при определени условия.
За повече информация свържете се с нас и цитирайте референтния номер на имота. Моля, кажете, че сте видeли обявата в този сайт.
Референтен номер: SOF-136363
Тел: 0882 817 588, 02 425 69 49
Отговорен брокер:д-р Гергана Цанкова
Без комисиона от купувача







