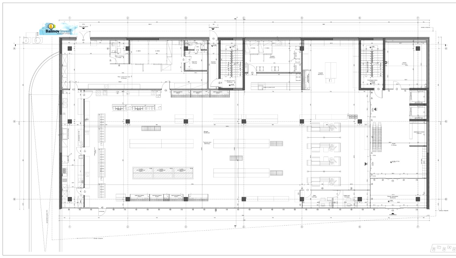
Продава без комисион за купувача самостоятелен търговски център в кв. Галата на три нива, подземен и външен паркинг и два търговски етажа, с обща площ от 3214 м2.
Готови сме да осигурим наематели на този обект, ако го разглеждате инвестиционно!
Към днешна дата за 50 % от сградата има готов наемател.
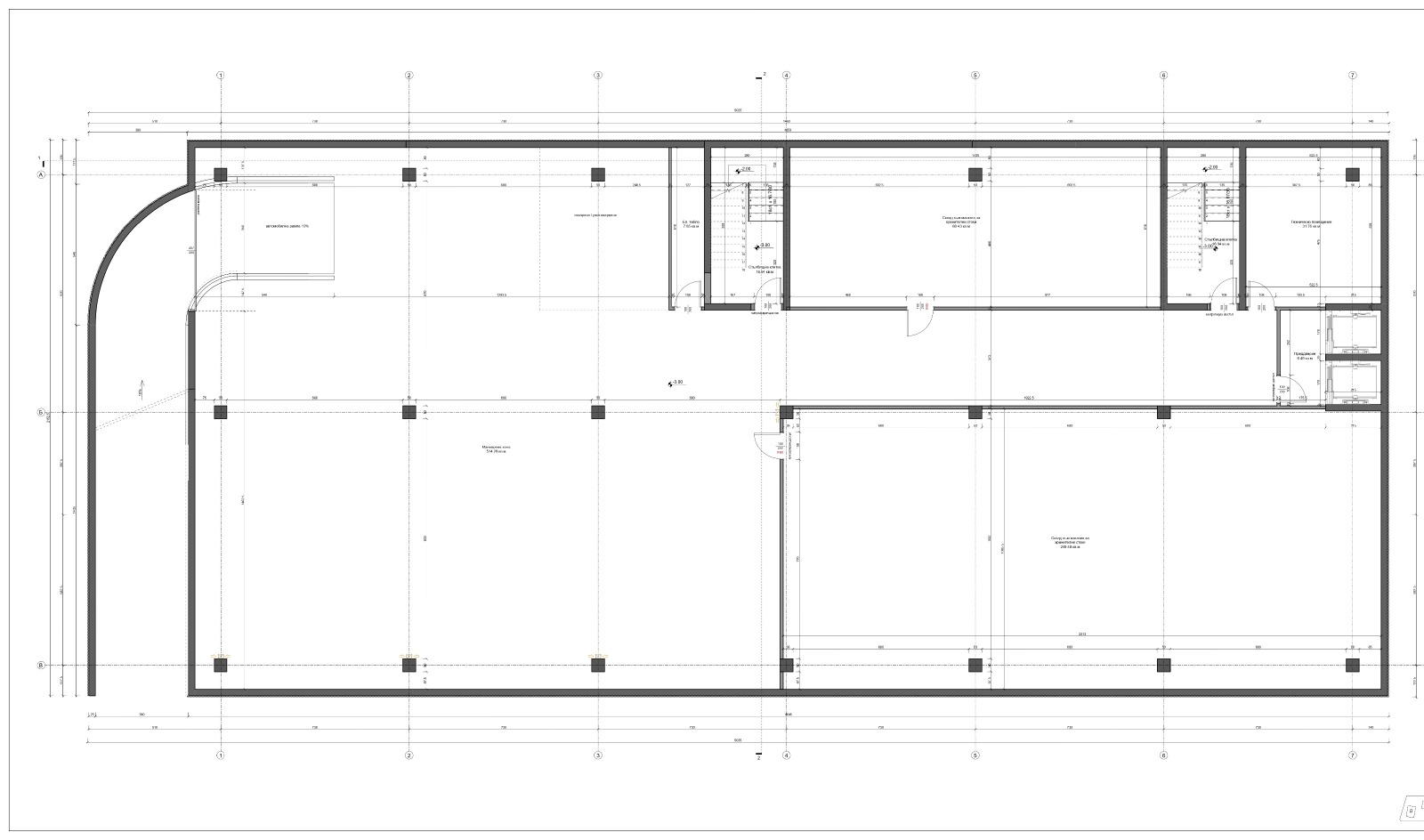
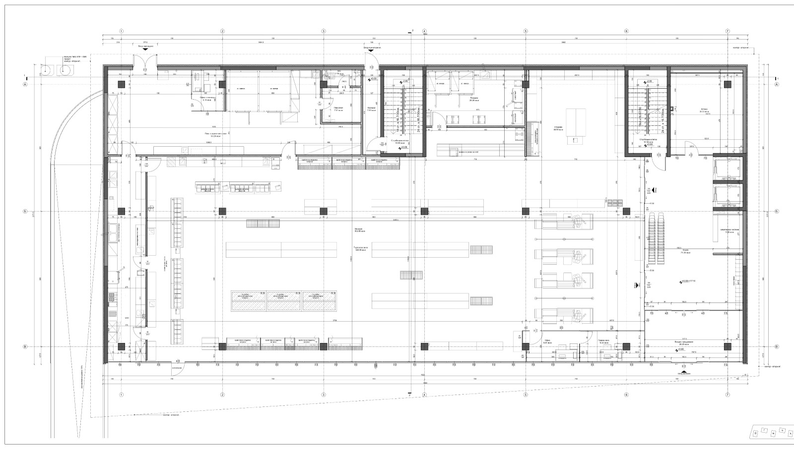
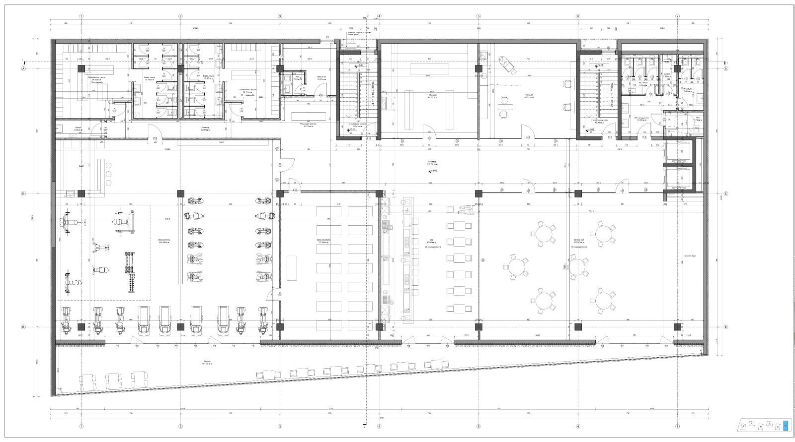
Сградата се състои от:
Сутерен: подземен паркинг площ 1000 м2
Партер: подходящ за както за голям хранителен магазин - няма конкуренция или за магазин за Строителни материали/железария площ 1012 кв.м.
Етаж 2: подходящ за медицински център или детска занималня и др. Площ 1200 кв.м.
Паркиране: Над 1000 кв.м. подземен паркинг и надземен паркинг. Сигурна инвестиция, насочена към вериги и стратегически инвеститори, търсещи доминираща позиция в нов пазар!
Продава се цяла търговска сграда над 2200 кв.м.в новостроящия се затворен семеен комплекс предлагащ над 200 жилищни единици, осигуряващи постоянен клиентски поток.
Районът е новозаселващ се и изпитва остра липса на основни услуги, което превръща Вашия обект в ключов център.
Свържете се с нас за детайли и инвестиционен план!







