🏙 Black & White Realty предлага за продажба търговски имот Магазин 1 в Линкълн Парк Резидънс, жк Овча Купел 2, София
✨ Описание на имота:
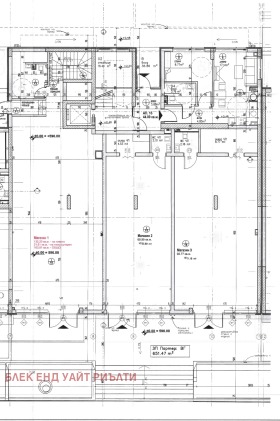
Представяме Ви функционален и добре разпределен магазин на две нива с лице към бул. Президент Линкълн 66. Имотът е в сграда с акт 16 и предлага отлична видимост и удобен достъп за клиенти.
Разпределение:
Партер: 132 м² търговска площ
Сутерен: 32 м² склад или допълнителна зона
Общи части: 33 м²
Обща площ: 197 м² (вкл. общи части)
Магазинът е подходящ за различни видове търговска или офис дейност, с лице на оживен булевард и потенциал за висока посещаемост. Архитектурата на обекта можете да разгледате в прикачения файл Stores.
⸻
🌳 Удобства и среда:
Сграда с акт 16 и добре поддържани общи части
Лесен достъп за пешеходци и автомобили
Отлична видимост на оживен булевард
Възможност за разделяне на отделни функционални зони
⸻
📍 Локация:
Магазинът се намира в жк Овча Купел 2, бул. Президент Линкълн 66, в близост до:
Основни градски транспортни връзки
Жилищни и бизнес комплекси
Магазини, заведения и услуги
⸻
💰 Цена: 350 000 с ДДС
Специална оферта до 25.12.2025: 340 000 с ДДС
⸻
✅ Предимства на имота:
Две нива партер и сутерен
Лице на булевард
Сграда с акт 16
Отлична инвестиционна възможност
Възможност за различни търговски и офис дейности
⸻
💼 Защо да изберете Black & White Realty:
Агенцията предлага пълно съдействие при покупка на имота, включително консултации за финансиране чрез банков кредит. Екипът ни осигурява професионално съдействие при подготовка и адаптация на имота според нуждите на клиента.
⸻
📞 Свържете се с нас днес и направете първата крачка към своя нов търговски имот!
Black & White Realty Вашият партньор в инвестициите и градските имоти.







