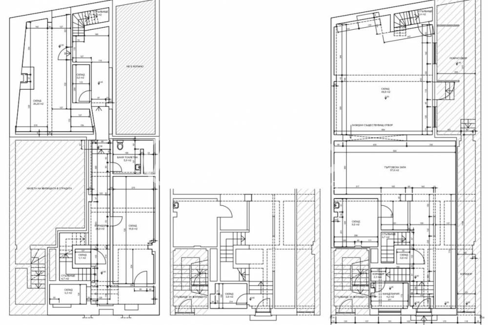
Търговски обект със статут на магазин и застроена площ 230кв.м., на две нива и следното разпределение : магазин на партерно ниво / 105,13кв.м./ с прилежащи изба и склад / 64,32кв.м/ , складово помещение на сутеренния етаж / 56,33кв.м./ , височина на таваните - 3,80.
Имотът е с лице на улица, с възможност за товаро - разтоварна дейност .
Подходящ за различен тип бизнес и преустройства, предвид централното местоположение, комуникативна локация и голяма квадратура.
Местоположение :
Централната част на гр.София, в близост до пл.Македония, Съдебната палата, Софийски градски съд, всякакви комуникации, търговски обекти, държавни учреждения, заведения за хранене, административни и развлекателни центрове.
Обади се сега и цитирай този код 671169
Виж всички обяви в address.bazar.bg или тук







