Translations in other languages:
All real estate ads published on imot.bg have been translated into English and published on the partner site
Получихте нова обява по филтър





Промяна на цена на наблюдавана обява


стара цена
нова цена
imot.bg – обяви за продажби и наеми на имоти
Сайт за имоти №1
Translations in other languages:
All real estate ads published on imot.bg have been translated into English and published on the partner site
ДОБАВИ ОБЯВА Редакция на обява
Начало Публикуване Търсене Нови сгради Агенции Новини Кредити + Още... Моят имот
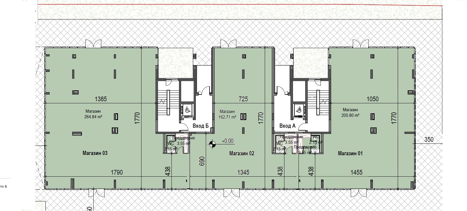
Продава МАГАЗИН
град София, Подуяне
бул. Ботевградско шосе
1 600 000 €
3 129 328.00 лв.

(1 975 €, 3 862.76 лв./m2)
Цената е без ДДС
Коригирана в 10:00 на 9 октомври, 2025 год.
Обявата е посетена 428 пъти.
Площ:
810 m2
Етаж:
Партер от 7
Строителство:
Тухла, Ще бъде въведен в експлоатация 2026 г.

Описание на имота:


15 % ПЪРВОНАЧАЛНА ВНОСКА за сграда с Акт 14, остатъка преди Акт 16! Компания Юнивърсъл с дългогодишен опит на имотния пазар представя многофункционален имот със статут на магазин /възможност за обединяване на три магазина/. Добра инвестиционна възвращаемост в района. Средният наем за търговски площи е от 10 до 14 Евро за 1 кв. метър. Помещението е с отлична видимост и големи витрини. ПОДХОДЯЩ е ЗА: банков офис, магазин, медицински център, лаборатория, шоу рум, обучителен център, козметично или соларно студио, фризьорски салон, аптека, фитнес център и др. Локация: Имотът се намира в модерен жилищен комплекс с богато озеленено пространство, между две метростанции Театрална и Хаджи Димитър . Районът е с изградена инфраструктора и голям пътникопоток, бърз и лесен достъп до централната градска част. Осигурени места за паркиране. Разпределение: Застроена площ на магазина 171 кв. метра Разположен е на партер. Има санитарно помещение, склад и по два вход/изхода, вентилационна система и отопление на ток. Предава се на шпакловка и замазка и ВиК. Осигурено кредитиране на Акт обр. 15. Схема на плащане -15% предв. договор,-80% след Акт 15 и 5% след Акт 16
Виж всички обяви в universalbg.bazar.bg или тук
Особености
Тухла
За контакт:
0893614209
Строителна фирма:
ЮНИВЪРСЪЛ
0893614209, 0893614202
ЮНИВЪРСЪЛ logo
Медал за прослужено време
В imot.bg от 2017 г.
universalbg.imot.bg
Адрес:
област София, гр. София, ул.Капитан Димитър Списаревски, 19
http://universal-bg.com
ИЗПРАТИ ЗАПИТВАНЕ
ИЗПРАТИ ЗАПИТВАНЕТО

Продава МАГАЗИН
град София, Подуяне
бул. Ботевградско шосе
Обява: 1l175749258581505

1 600 000 €
3 129 328.00 лв.
(1 975 €, 3 862.76 лв./m2)

Цената е без ДДС
ЗАПАЗИ ОБЯВАТА

Местоположение: град София, Подуяне, бул. Ботевградско шосе

Виж още имоти от София или още Магазини в София
Допълнителни данни за имотите в района и сравнение с други райони: Търсене в АРХИВ 2013 - 2025 г.











Добави/редактирай
вид имот и район
*Средните цени са определени чрез медиана стойност.
Още обяви в imot.bg
КОНТАКТИ | SMS КОДОВЕ | СТАТИСТИКА | ПОМОЩ | ОБЩИ УСЛОВИЯ | РЕКЛАМА | ТОП ОФЕРТА | Въпроси и предложения към imot.bg
Резон Медия | Имоти | Автомобили | Работа | Новини | Обяви | Преводи и легализация 2002-2025 ® Copyright imot.bg
© imot.bg ползва и препоръчва хостинг услугите на Bulinfo.net
Следвайте ни в: