Моля, кажете, че сте видeли обявата в този сайт.
Референтен номер: LXH-124385
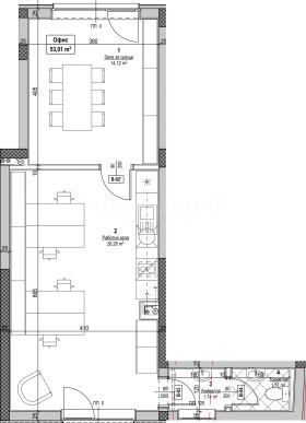
Представяме за продажба търговско помещение в нова, луксозна сграда с Акт 16, на топ локация в Новия град на Несебър, в непосредствена близост до крайбрежната алея.
Имотът е с обща площ от 62 кв.м, разположен на 1-ви етаж с вход от към улицата. Състои се от две зали и едно санитарно помещение изцяло оборудвано с висококачествена керамика от испанските лидери в бранша Porcelanosa. Подходящ е за офис или магазин, с отличен инвестиционен потенциал.
Предлага се в степен на завършеност 'до ключ'.
Без такса поддръжка!
Местоположението е изключително спокойно и на самия морски бряг, с бърз достъп до Стария град и всички градски удобства. До най-близкия плаж е около 400 метра или 5 минути пеша.
Номинация в PIPA
Модерната сграда беше номинирана да участва в престижния международен конкурс PIPA.
Porcelanosa International Project Award е престижно състезание, организирано от Porcelanosa Group, водещия испански производител на керамични плочки, оборудване за кухня и баня. Целта на състезанието е да отличи изключителни архитектурни и интериорни проекти по целия свят, които демонстрират иновативно използване на продуктите и материалите на PORCELANOSA.
Девизът е EARTHCRAFTED DESIGNS - дизайни вдъхновени от природата!
Идеята е да се насърчи креативността и отличителността в архитектурния дизайн, като се подчертае връзката между материалите добити от природата и техническите умения, които превръщат едно пространство в произведение на изкуството.
Апартаменти
Сградата се състои от четири жилищни етажа и сутерен с подземен гараж.
Комплексът е с луксозни общи части, асансьор на испанския производител ORONA и помещение за общи нужди на партера на сградата, както и озеленяване на прилежащите части.
Екстериорът на сградата е завършен с фасадна керамика на PORCELANOSA.
На сутеренния етаж на комплексa се намират 7 гаража, 5 паркоместа и 3 ...
За повече информация свържете се с нас и цитирайте референтния номер на имота. Моля, кажете, че сте видeли обявата в този сайт.
Референтен номер: LXH-124385
Тел: +359 889 007 010
Моб: +359 877 777 888 (WhatsApp, Viber, SMS)
Отговорен брокер:Стоунхард ПРЕМИЪР
Без комисиона от купувача
Виж всички обяви в stonehardbg.bazar.bg или тук







