Идеалният момент да позиционирате бизнеса си в развиваща се локация с голям потенциал!
Изключителна възможност за бизнес!
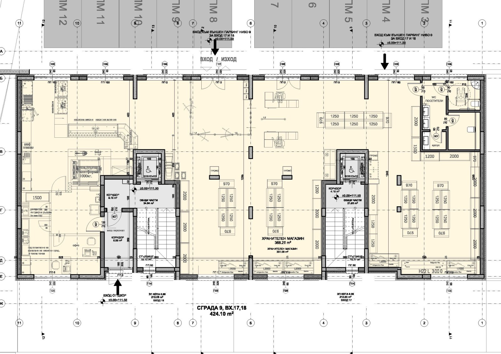
Tърговска площ в най-мащабния и новостроящ се модерен жилищен комплекс в град Варна Sun City Residence !
🔹 Локация: м-ст Зеленика бързоразвиващ се квартал с отлична инфраструктура и лесен достъп;
🔹 Площ: 416 кв.м., с възможност за закупуване и на складово помещение;
🔹 Статут: Хранителен магазин или друга търговски дейност;
🔹 Предимства:
✔️ Ново строителство
✔️ Потенциал за висок клиентопоток с над 2 500 жилища само в Sun City Residence ;
✔️ Предвидени са наземни паркоместа за клиенти;
✔️ Конкурентна цена на квадратен метър при ранна покупка;
🔹 Състояние: В етап на строеж възможност за гъвкаво разпределение и довършване по ваше желание!
Sun City Residence ще бъде построен на 5 Етапа, като срок на строителството за всеки етап ще бъде около 30 мес. Ще започнем сторителството с Първи Етап 1, който ще стартираме и ще го завършим напълно (с Акт 16) до 01.2028г.
Етап 1 - Ще се състои от 9 сгради, с различна етажност и разположение. Във всяка сграда ще има функционални разпределения на 1-стайни, 2-стайни, 3-стайни и 4-стайни жилища, като всички ще имат уникална глекда още от приземен етаж.
Освен паноромни, апартаментите на приземен етаж ще бъдат и с особени самостоятелни дворове, както 2-стайни и 3-стайни с различни квадратури и разпределения. В две от сградите в близост до входа на комплекса сме предвидили търговски площи, предназначени за: хранителен магазин, детска занималня, кафе-сладкарница, дентален център и салон за красота, до които ще имат достъп и външни посетители. Паркирането за живущите в комплекса ще бъде организирано в подземни паркинги с топла и асансьорна връзка с всяка една от сградите с обособени места и за електромобили. Предвидени са външни паркоместа около търговските обекти за удобство и на външни посетителите в непосредствена близост до входа за комплекса (на 200 м от паркинга на Панорамната площадка).
За повече информация и огледи, свържете се с нас:
Мирослав Иванов и Даниела Шойлева
отдел 'АГОРА -Продажби'
тел: 0889 486 505
Виж всички обяви в agenciaagora.bazar.bg или тук
        
       
         
         
         
         
         
             
             
             
             
            





