Продажби директно от инвеститора 0% комисиона за купувача!
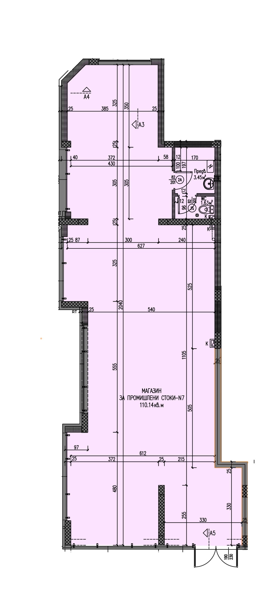
Предлагаме магазин за промишлени стоки 7, разположен във вход А , в новия жилищен комплекс от затворен тип Олимпия Грийн , в район Източен, на бул. 6-ти септември 239.
Обектът се състои от:
✔ Търговска зала
✔ Складово помещение
✔ Тоалетна
Комплексът включва 190 апартамента, което прави помещението изключително подходящо за развитие на различни видове бизнес.
Предвидени са удобни паркоместа пред магазините за клиенти и персонал.
➡️ Комплексът е с издаден Акт 14
➡️ Очакван Акт 16 средата на 2026 г.
🔧 Степен на завършеност (след Акт 16):
✔ Окачен таван
✔ Стени гипсокартон, боядисани в бяло
✔ Под гранитогрес
✔ Витрина алуминиева дограма с двоен стъклопакет
✔ Алуминиеви врати към склада и санитарния възел
✔ LED осветителни тела
✔ Ключове и контакти
✔ Интернет розетка
✔ Водомер с дистанционно отчитане
✔ Електромер
✔ Санитарен възел плочки, ВиК на тапа
✔ Подготовка за климатик (тръбен път и стойка за външно тяло)
Всички свободни търговски обекти можете да разгледате на:
🌐 www.olympia.bg
📞 За повече информация:
0887 008 030 / 0886 009 030







