Translations in other languages:
All real estate ads published on imot.bg have been translated into English and published on the partner site
Получихте нова обява по филтър





Промяна на цена на наблюдавана обява


стара цена
нова цена
imot.bg – обяви за продажби и наеми на имоти
Сайт за имоти №1
Translations in other languages:
All real estate ads published on imot.bg have been translated into English and published on the partner site
ДОБАВИ ОБЯВА Редакция на обява
Начало Публикуване Търсене Нови сгради Агенции Новини Кредити + Още... Моят имот
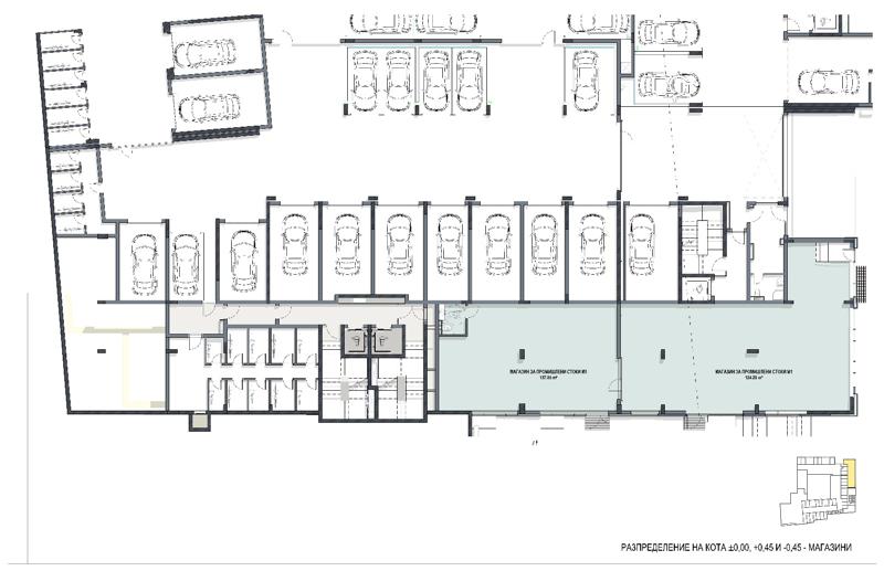
Продава МАГАЗИН
град София, Кръстова вада
бул. Черни връх
1 017 960 €
1 990 956.71 лв.

(2 994 €, 5 855.76 лв./m2)
Цената е без ДДС
История на цената
Коригирана в 13:15 на 17 октомври, 2025 год.
Обявата е посетена 161 пъти.
Площ:
340 m2
Етаж:
Партер от 14
Газ:
ДА
Строителство:
Тухла, Въведен в експлоатация 2025 г.

Описание на имота:


С АКТ-16!!!ДИРЕКТНО ОТ ИНВЕСТИТОР,БЕЗ КОМИСИОННА ОТ КУПУВАЧА!!!Предлагаме за продажба ЪГЛОВ МАГАЗИН (М1) ПОДХОДЯШ И ЗА ОФИС,разположен на бул.'Черни връх' 182.Сградата е част от затворен комплекс''SOUTH END'' с физическа охрана,видеонаблюдение и частен парк. Висок клас строителни материали, луксозна окачена фасада с широкоформатен гранитогрес на италианската фирма 'Laminam, алуминиева дограма 'Rayners'! Магазина е тип 'OPEN SPACE' на едно ниво.Сградата е газифицирана.Отоплението и охлаждането в търговските помещения е предвидено на климатици.ПОДХОДЯЩ ЗА ДЕНТАЛНА КЛИНИКА,ОФИС И ДРУГИ ЦЕЛИ!!!Възможност за закупуване или наемане на паркоместа! За допълнителна информация или директна среща 0886 535 972.
Виж всички обяви в southend.bazar.bg или тук
Особености
Тухла
С гараж
С паркинг
Интернет връзка
Видео наблюдение
Контрол на достъпа
Охрана
Саниран
В затворен комплекс
За контакт:
0886535972
Инвеститор:
САУТ ЕНД РЕЗИДЕНСИС
0886535972
САУТ ЕНД РЕЗИДЕНСИС logo
Медал за прослужено време
В imot.bg от 2021 г.
southend.imot.bg
Адрес:
област София, гр. София, бул.'Черни връх' 182
http://www.southend.bg
ИЗПРАТИ ЗАПИТВАНЕ
ИЗПРАТИ ЗАПИТВАНЕТО

Продава МАГАЗИН
град София, Кръстова вада
бул. Черни връх
Обява: 1l165545517654281

1 017 960 €
1 990 956.71 лв.
История на цената
(2 994 €, 5 855.76 лв./m2)

Цената е без ДДС
ЗАПАЗИ ОБЯВАТА

Местоположение: град София, Кръстова вада, бул. Черни връх

Виж още имоти от София или още Магазини в София
Допълнителни данни за имотите в района и сравнение с други райони: Търсене в АРХИВ 2013 - 2025 г.











Добави/редактирай
вид имот и район
*Средните цени са определени чрез медиана стойност.
КОНТАКТИ | SMS КОДОВЕ | СТАТИСТИКА | ПОМОЩ | ОБЩИ УСЛОВИЯ | РЕКЛАМА | ТОП ОФЕРТА | Въпроси и предложения към imot.bg
Резон Медия | Имоти | Автомобили | Работа | Новини | Обяви | Преводи и легализация 2002-2025 ® Copyright imot.bg
© imot.bg ползва и препоръчва хостинг услугите на Bulinfo.net
Следвайте ни в: