LUXIMMO FINEST ESTATES: www.luximmo.bg
Представяме къща в нов затворен жилищен комплекс в местност Камбаните , в.з. Малинова долина-Герена , район Панчарево. Планирано завършване: юни 2027 г. (Акт 16).
Локация
Комплексът се намира в подножието на Витоша, в зона с ниска плътност на застрояване и запазена природна среда. Осигурен е бърз достъп до Околовръстния път, от там до Бизнес парк София, Ring Mall, IKEA и престижни учебни заведения в Симеоново, Витоша и Драгалевци. Основните бизнес и търговски зони на столицата са в рамките на 15-20 минути с автомобил.
Архитектурна концепция:
Модерна архитектура с акцент върху естествените материали. Проектът е с ниска плътност на застрояване под 20%, и над 50% озеленяване. Фасадата съчетава мазилка Baumit и вентилируема облицовка с керамични плочи Laminam, осигуряващи дълготрайност и характер.
Характеристики на къщата
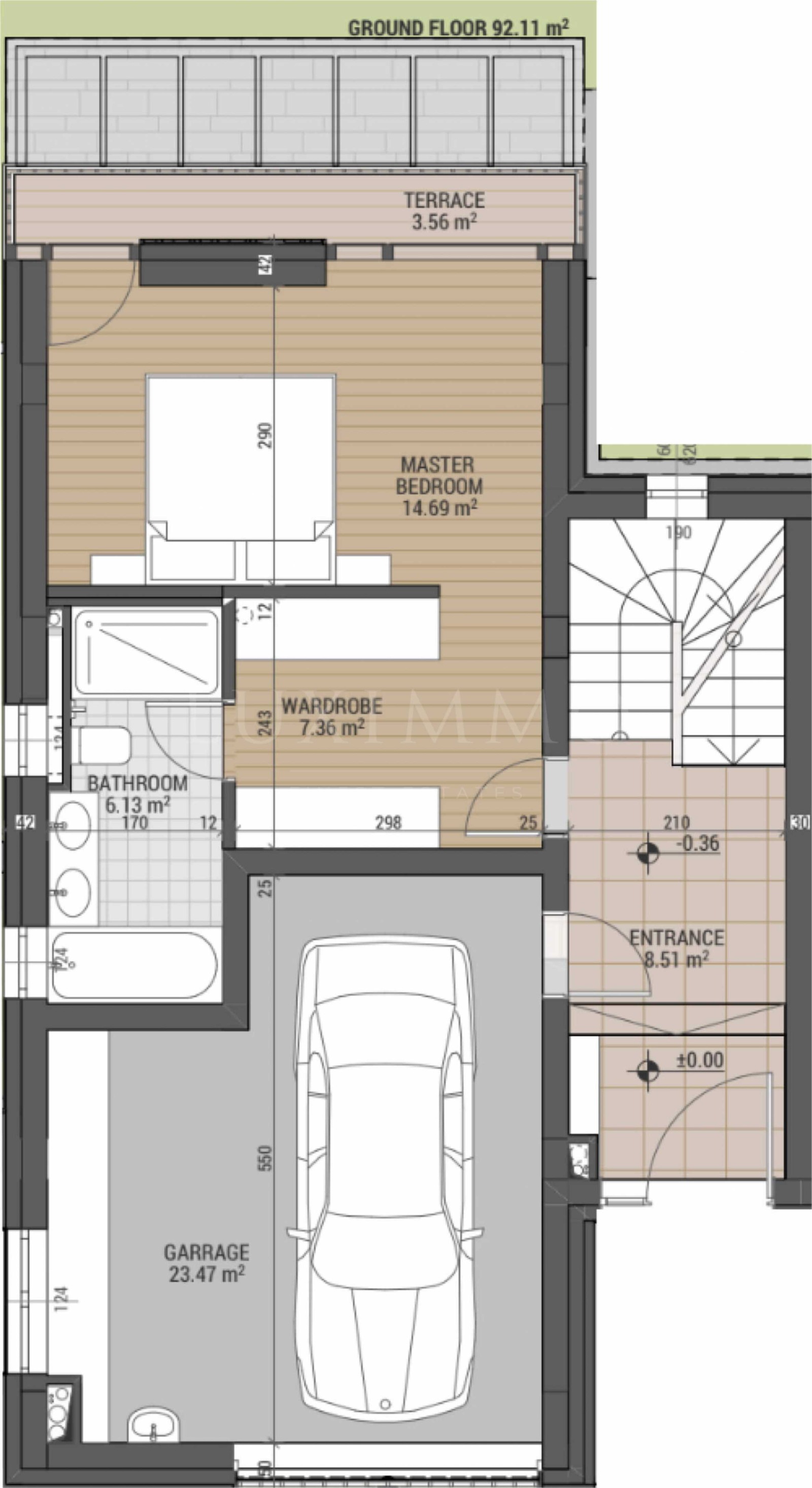
Обща разгъната застроена площ 257.23 кв.м на три нива. Парцел 248.49 кв.м с личен двор. Изложение изток/запад. Четири спални, три санитарни възела, вграден гараж за един автомобил. Денивелацията на терена позволява гаражът да бъде разположен на второ ниво, с директен достъп от улицата, а дневният тракт на първо (градинско) ниво, с излаз към двора.
Разпределение:
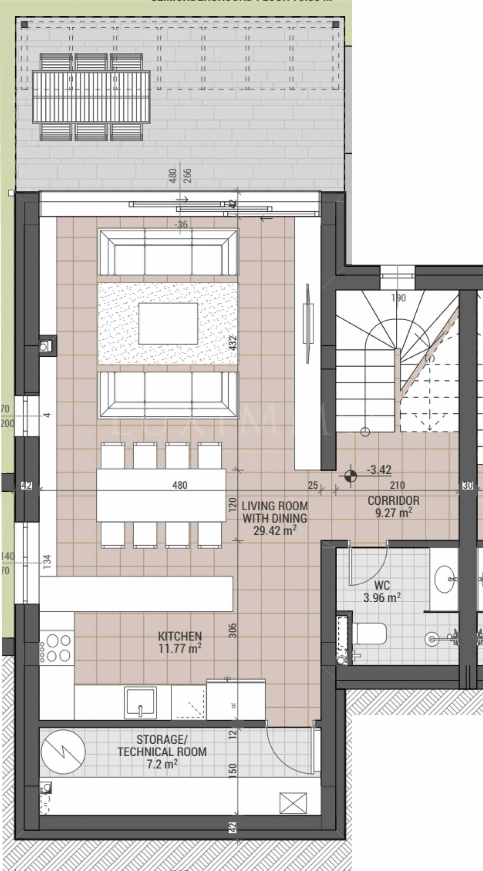
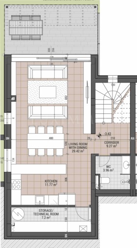
Първо (градинско) ниво 92.11 кв.м
входно антре;
дневна с трапезария (29.42 кв.м);
кухненски бокс (11.77 кв.м);
тоалетна за гости (3.96 кв.м);
складово/техническо помещение (7.2 кв.м);
веранда с излаз към двора.
Второ ниво 82.56 кв.м
мастър спалня (14.69 кв.м) с гардеробна (7.36 кв.м);
баня с тоалетна (6.13 кв.м);
тераса;
вграден гараж за един автомобил (23.47 кв.м).
Трето ниво 82.56 кв.м
спалня (14.69 кв.м);
гостна спалня (13.23 кв.м);
трета спалня (12.53 кв.м);
баня с тоалетна (5.49 ...
Цената на имота е 711 300 евро / 1 391 181.88 лв. без ДДС или 853 560 евро / 1 669 418.25 лв. с ДДС. Данъчен кредит може да се ползва при определени условия.
За повече информация свържете се с нас и цитирайте референтния номер на имота. Моля, кажете, че сте видeли обявата в този сайт.
Референтен номер: SOF-134004
Тел: 0988 154 591, 02 451 47 83
Отговорен брокер:Иван Чилов
Без комисиона от купувача



