Имотен Център България ви представя бутикови редови къщи, разположени в спокойна и зелена среда в с.Гурмазово, с бърз и удобен достъп до града, само на 15 минути от София. Всяка къща предлага 315 кв.м РЗП на три нива и самостоятелен двор от 215 кв.м, перфектен баланс между комфорт, функционалност и уединение.
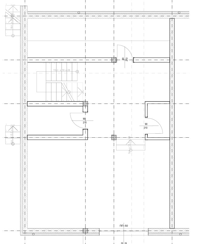
Разпределение:
Сутерен: хол с излаз към двора, баня с тоалетна, сервизно помещение, склад
1-ви етаж: гараж с топла връзка, антре, баня с тоалетна, просторна дневна с кухня
2-ри етаж: три спални, две бани с тоалетни, дрешник, две тераси
Къщите са на етап акт 15, като ще бъдат завършени до края на годината
Предимства:
Високи тавани и усещане за простор
Подово отопление навсякъде, включително в гаража
Термопомпа и конвектори за охлаждане
Окачена фасада от мрамор и травертин
Гараж с паркомясто пред него
Идеален избор за хора, които търсят висок стандарт на живот, спокойствие и близост до столицата.
Агенцията предлага безплатно професионално съдействие за банково кредитиране
За повече информация, огледи и още актуални предложения се свържете с нас на посочения номер.
Водещ брокер: Кристин Йорданова







